We use cookies and other technologies for functionality, security, and to provide you with a personalized experience on our online services. By continuing to use our online services, you agree to our Privacy Policy and Terms of Use. For information on how to adjust your privacy settings, visit our Cookie Policy.
Dismiss
Home MB Greater Winnipeg Division No. 11 Winnipeg Peguis
246 Bill Briercliffe Drive
Directions Print
246 Bill Briercliffe Drive $497,900
$497,900
Hide
Favourite

246 Bill Briercliffe Drive
Winnipeg, Manitoba R3W0S5

MLS® Number: 202600377
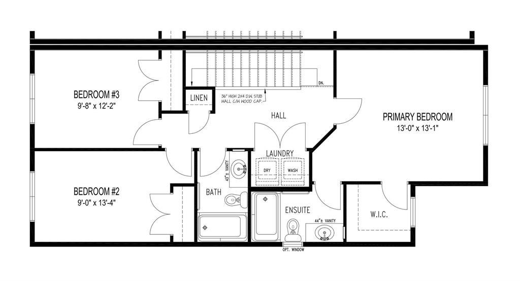
3
Bedrooms
3
Bathrooms
1489
Square Feet

Listing Description

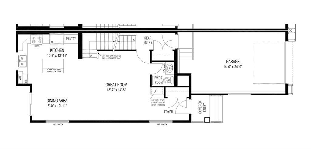
3K//Winnipeg/** CALLING ALL FIRST TIME HOME BUYERS! - at a purchase price of $497,900 you could be eligible for a $23,700 GST rebate, which would get you into this home for under $475,000 after applicable rebate!! Buyers to do their own due diligence if they meet rebate eligibility requirements. Call for details! ** WELCOME TO THE VENTURA MONTANA! This 1,489 sq.ft. two storey home delivers exceptional value with high-end finishes. Entering the home you are greeted by 9' ceilings and an open layout with a large Great Room next to the beautiful Kitchen and Dining Area. The 2nd floor features 9' ceilings, a spacious Primary Bedroom w/ walk-in closet & ensuite, 2 large bedrooms, and 2nd floor laundry! This home has it all! Upgraded features include extra deep garage with flush panel garage door, glass inserts and opener, manufactured stone to the front elevation, Kitchen includes an island, under-cabinet lighting & soft-close, flat painted ceilings and more! Move into a brand new home with cutting edge finishes and no worries! Ask about our 10 year home warranty. PLUS CURRENT SALES PROMO OF: KITCHEN QUARTZ, LUXURY VINYL PLANK & MORE! Don't delay - book your private viewing today! (231838059)

Property Summary

Property Type
Single Family
Building Type
House
Storeys
2
Square Footage
1489 sqft
Community Name
Devonshire Park
Neighbourhood Name
Devonshire Park
Title
Freehold
Land Size
25 x 122
Built in
2026
Annual Property Taxes
$0
Parking Type
Attached Garage, Other, Other, Other
Time on REALTOR.ca
28 days

Building

Bathrooms
Total
3
Partial
1
Interior Features
Appliances Included
Hood Fan, Garage door opener, Garage door opener remote(s)
Flooring
Wall-to-wall carpet, Vinyl
Building Features
Features
Closet Organizers, Exterior Walls- 2x6", No Smoking Home, Central Exhaust, No Pet Home, Sump Pump
Heating & Cooling
Heating Type
Heat Recovery Ventilation (HRV), High-Efficiency Furnace, Forced air (Natural gas)
Utilities
Utility Sewer
Municipal sewage system
Water
Municipal water
Neighbourhood Features
Amenities Nearby
Playground, Public Transit, Shopping
Parking
Parking Type
Attached Garage, Other

Measurements

Square Footage
1489 sqft

Rooms

MetricImperial
Main level
Great room
Kitchen
Dining room
Upper Level
Bedroom
Bedroom
Primary Bedroom

Land

Lot Features
Frontage
25 ft
Land Depth
122 ft
Road Type
Paved road
Are you interested in touring this listing?
Request a showing

Similar Listings

Evald Frederiksen