We use cookies and other technologies for functionality, security, and to provide you with a personalized experience on our online services. By continuing to use our online services, you agree to our Privacy Policy and Terms of Use. For information on how to adjust your privacy settings, visit our Cookie Policy.
Dismiss
Home BC Greater Kamloops Thompson-Nicola Chase
161 SHUSWAP Avenue Unit# 24
Directions Print
161 SHUSWAP Avenue Unit# 24 $152,900
$152,900
Hide
Favourite

161 SHUSWAP Avenue Unit# 24
Chase, British Columbia V0E1M0

MLS® Number: 10371612
2
Bedrooms
2
Bathrooms
1061
Square Feet

Listing Description

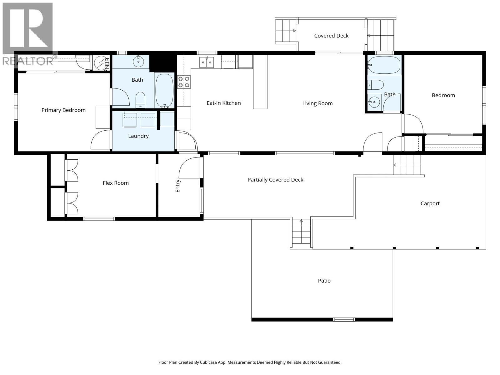
Welcome home to 24-161 Shuswap Ave located in beautiful Chase BC. This mobile home has a lot to offer with 2 bedrooms (flex room could be a third bedroom), 2 bathrooms and a nice open kitchen/dining/living area. The property is clean, bright and has been well maintained over the years. Relax outside on the large, partially covered main deck, small side deck or spend time in the nice sized yard. Comes with A/C, two storage sheds, a newer hot water tank and has a wheelchair lift for those that require a bit more assistance. There is a 1 car carport and one additional open parking space. The property is close to shopping, groceries and most other amenities. Chase is a quiet lake community that could be your next home! (39597856)

Property Summary

Property Type
Single Family
Building Type
Manufactured Home
Storeys
1
Square Footage
1061 sqft
Neighbourhood Name
Chase
Land Size
under 1 acre
Built in
1983
Annual Property Taxes
$689.36
Parking Type
Carport
Time on REALTOR.ca
10 days

Price and Sale History

Date Status Price
Aug 26, 2022 Sale Closed $135,000
Aug 25, 2022 Sale Closed $135,000
Aug 11, 2006 Sale Closed $52,000

Building

Bathrooms
Total
2
Partial
0
Interior Features
Appliances Included
Range, Refrigerator, Dishwasher, Microwave, Washer & Dryer
Flooring
Mixed Flooring
Heating & Cooling
Cooling
Central air conditioning
Heating Type
Forced air
Utilities
Utility Sewer
Municipal sewage system
Water
Municipal water
Exterior Features
Roof Style
Asphalt shingle
Maintenance or Condo Information
Maintenance Fees
$660 Monthly
Maintenance Fees Include
Pad Rental
Parking
Parking Type
Carport

Measurements

Square Footage
1061 sqft

Rooms

MetricImperial
Main level
4pc Bathroom
4pc Bathroom
Other
Bedroom
Primary Bedroom
Foyer
Living room
Kitchen
Are you interested in touring this listing?
Request a showing

Similar Listings

Jeremy Bates