We use cookies and other technologies for functionality, security, and to provide you with a personalized experience on our online services. By continuing to use our online services, you agree to our Privacy Policy and Terms of Use. For information on how to adjust your privacy settings, visit our Cookie Policy.
Dismiss
Home ON Parry Sound District McKellar
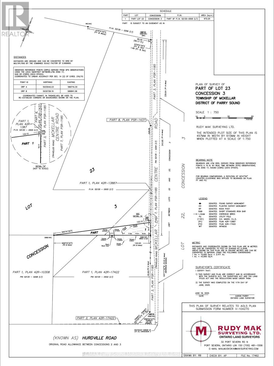
811 CENTRE ROAD
Directions Print
811 CENTRE ROAD $154,900
$154,900
Hide
Favourite

811 CENTRE ROAD
McKellar, Ontario P2A0B4

MLS® Number: X12672430
0
Bathrooms
-
Square Feet

Listing Description

DESIRABLE, TURNKEY BUILDING LOT ACREAGE ! 3.55 Acres! Ideal for building your dream home or cottage, Driveway is in, Cleared areas for building, Dug well on property, Private, Picturesque and Level Land, Hydro nearby, Enjoy weekend getaways or build your 4 season dream property! Year-round road access, Municipally maintained and plowed road, Mins to Lake Manitouwabing and boat launch! Low taxes approx $250/year! Great opportunity to invest in the North! Book your appt today. (41897418)

Location Description

Cross Streets: 400, McDougall Rd, Hurdville Rd, Centre Rd. ** Directions: Hwy 400 to McDougall Rd to Hurdville Rd to Centre Rd, near left corner.

Property Summary

Property Type
Vacant Land
Community Name
McKellar
Land Size
313.42 x 354.25 FT|2 - 4.99 acres
Annual Property Taxes
$241.97
Time on REALTOR.ca
51 days

Building

Bathrooms
Total
0
Building Features
Features
Wooded area, Irregular lot size, Partially cleared, Level
Utilities
Utility Type
Electricity (Available)
Water
Dug Well
Neighbourhood Features
Community Features
School Bus
Amenities Nearby
Beach, Golf Nearby, Hospital

Land

Lot Features
Frontage
313 ft ,5 in
Land Depth
354 ft ,3 in
Other Property Information
Access
Year-round access
Zoning Description
RU
Are you interested in touring this listing?
Request a showing

Similar Listings

HOLLY CASCANETTE