We use cookies and other technologies for functionality, security, and to provide you with a personalized experience on our online services. By continuing to use our online services, you agree to our Privacy Policy and Terms of Use. For information on how to adjust your privacy settings, visit our Cookie Policy.
Dismiss
Home ON Greater London Middlesex County London River Bend
1919 FOUNTAIN GRASS DRIVE
Directions Print
1919 FOUNTAIN GRASS DRIVE $3,450/Monthly
$3,450/Monthly
Hide
Favourite

1919 FOUNTAIN GRASS DRIVE
London South (South B), Ontario N6K4P9

MLS® Number: X12666306
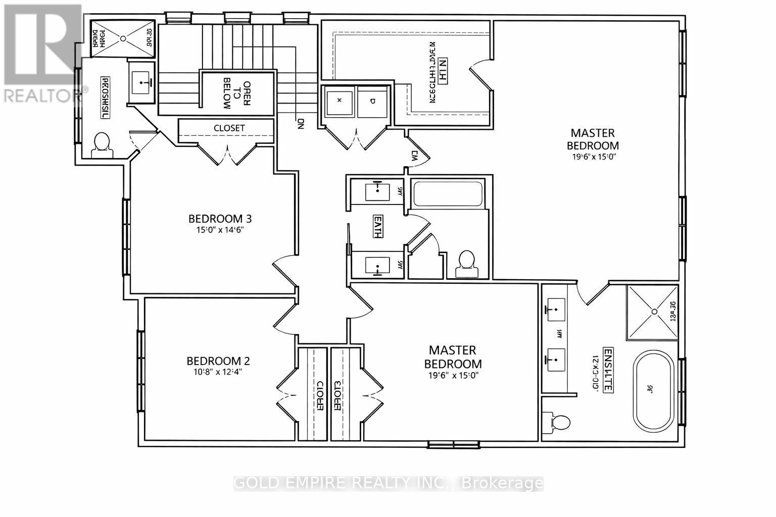
4
Bedrooms
4
Bathrooms
2500 - 3000
Square Feet

Listing Description

Available February 1, 2026, this stunning 3-year-old detached 2-storey home, located at 1919 Fountain Grass in the prestigious Warbler Woods (Byron) neighbourhood, offers approx. 2800 sq. ft. of luxurious living space on a 43 ft. x 115 ft. lot. EXTRA ROOM/DEN ON the Main floor. The main floor features an open-concept layout with a chef's kitchen, pantry, built-in appliances (cooktop, oven, microwave), oversized butler's buffet, and a cozy family room with a fireplace. The second floor boasts a spacious master suite with a 5-piece ensuite, 4 bedrooms in total, and 3 full bathrooms, along with convenient laundry. The home is steps away from walking trails, top-rated schools, and a new school currently under construction. Close to the West 5 Sifton building, this home is perfect for nature lovers and those seeking a modern, well-appointed space in an ideal location. (41889439)

Location Description

Cross Streets: Westdel Bourne & Fountain Gras. ** Directions: Fountain Grass.

Property Summary

Property Type
Single Family
Building Type
House
Storeys
2
Square Footage
2500 - 3000 sqft
Community Name
South B
Title
Freehold
Land Size
43 x 115 FT|under 1/2 acre
Age Of Building
0 to 5 years
Parking Type
Detached Garage, Garage
Time on REALTOR.ca
11 days

Building

Bedrooms
Above Grade
4
Bathrooms
Total
4
Partial
1
Interior Features
Appliances Included
Cooktop, Dryer, Oven, Washer, Refrigerator
Basement Type
Full (Unfinished)
Building Features
Features
Sump Pump
Foundation Type
Poured Concrete
Style
Detached
Rental Equipment
Water Heater
Heating & Cooling
Cooling
Central air conditioning
Heating Type
Forced air (Natural gas)
Utilities
Utility Type
Cable (Available), Electricity (Available), Sewer (Available)
Utility Sewer
Sanitary sewer
Water
Municipal water
Exterior Features
Exterior Finish
Brick
Parking
Parking Type
Detached Garage, Garage
Total Parking Spaces
4

Measurements

Square Footage
2500 - 3000 sqft

Rooms

MetricImperial
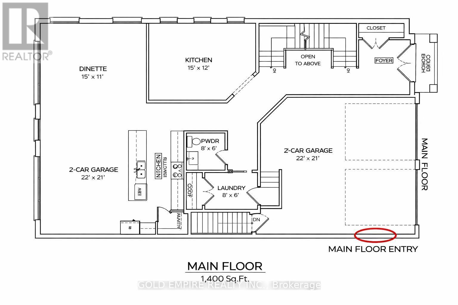
Main level
Kitchen
Mud room
Family room
Dining room
Upper Level
Bathroom
Bathroom
Bathroom
Primary Bedroom
Bedroom 2
Bedroom 3
Bedroom 4

Land

Lot Features
Frontage
43 ft
Land Depth
115 ft
Are you interested in touring this listing?
Request a showing

226-270-5000
226-270-5000

Similar Listings

NARINDER BHANGOO