We use cookies and other technologies for functionality, security, and to provide you with a personalized experience on our online services. By continuing to use our online services, you agree to our Privacy Policy and Terms of Use. For information on how to adjust your privacy settings, visit our Cookie Policy.
Dismiss
Home BC Greater Kamloops Thompson-Nicola Kamloops Juniper Ridge
1609 Cordonier Place
Directions Print
1609 Cordonier Place $1,209,000
$1,209,000
Hide
Favourite

1609 Cordonier Place
Kamloops, British Columbia V2E0E4

MLS® Number: 10372012
7
Bedrooms
5
Bathrooms
3361
Square Feet

Listing Description

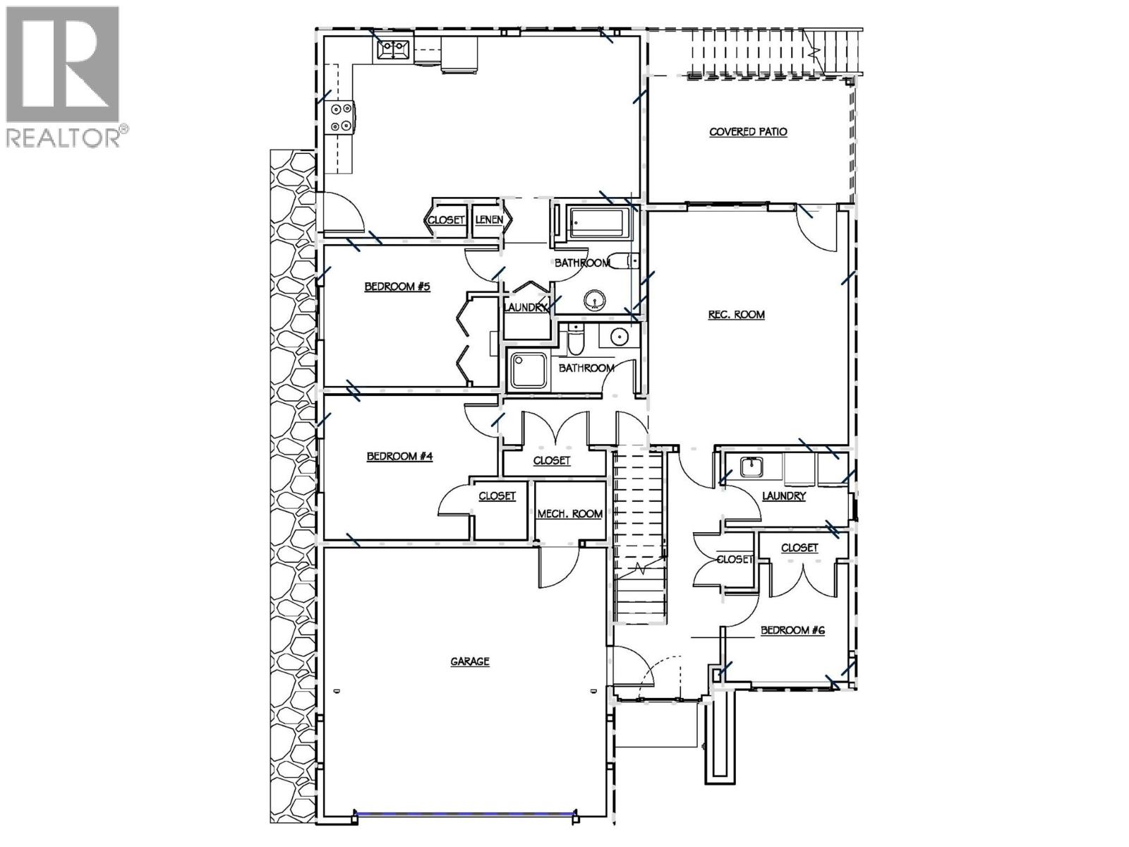
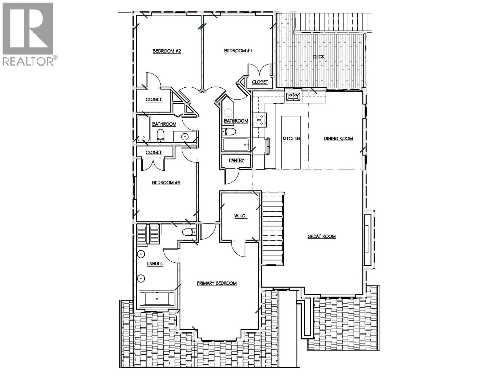
Brand new seven bedroom, five bathroom home offers quality finishing throughout. The open-concept main floor features vaulted ceilings and expansive windows, creating a bright and airy ambiance—a stunning gourmet kitchen with quartz counters and a large center island. Four bedrooms on the main level. The master bedroom has a large five-piece ensuite with a custom tile base shower. A second bedroom on the main also has an ensuite. Features include heat pump, roughed-in central vacuum and built-in entertainment center in living room. Daylight basement has a large rec room, two bedrooms, a three-piece bathroom for primary floor use, plus a legal self-contained one-bedroom suite with laundry. Situated on a spacious 8,811 sq. ft. lot, this home also offers the Buyer potential to add a pool with city and geotechnical approval. Located on a quiet cul-de-sac. (39593394)

Property Summary

Property Type
Single Family
Building Type
House
Storeys
2
Square Footage
3361 sqft
Neighbourhood Name
Juniper Ridge
Title
Freehold
Land Size
0.2 ac|under 1 acre
Built in
2025
Annual Property Taxes
$3,976.38
Parking Type
Attached Garage (2)
Time on REALTOR.ca
10 days

Building

Bathrooms
Total
5
Partial
0
Interior Features
Flooring
Mixed Flooring
Basement Type
Full
Building Features
Features
Cul-de-sac, Level lot, Central island, Balcony
Style
Detached
Architecture Style
Split level entry
Split Level Style
Other
Heating & Cooling
Cooling
See Remarks, Heat Pump
Fireplace
1
Fireplace Type
Unknown (Electric)
Heating Type
Heat Pump, See remarks
Utilities
Utility Sewer
Municipal sewage system
Water
Municipal water
Exterior Features
Roof Style
Asphalt shingle
Exterior Finish
Other
Neighbourhood Features
Community Features
Family Oriented
Amenities Nearby
Park
Parking
Parking Type
Attached Garage (2)
Total Parking Spaces
2

Measurements

Square Footage
3361 sqft

Rooms

MetricImperial
Main level
Bedroom
Bedroom
Bedroom
Primary Bedroom
Kitchen
Dining room
Living room
5pc Ensuite bath
4pc Ensuite bath
4pc Bathroom
Basement
Bedroom
Bedroom
Recreation room
3pc Bathroom
Additional Accommodation
Kitchen
Living room
Bedroom
Full bathroom

Land

Lot Features
Landscape Features
Level, Underground sprinkler
Road Type
Cul de sac
View
City view, Mountain view
Other Property Information
Access
Easy access
Are you interested in touring this listing?
Request a showing

Similar Listings

Jerry Gill