We use cookies and other technologies for functionality, security, and to provide you with a personalized experience on our online services. By continuing to use our online services, you agree to our Privacy Policy and Terms of Use. For information on how to adjust your privacy settings, visit our Cookie Policy.
Dismiss
Home AB Greater Edmonton Division No. 11 Edmonton Argyll
6724 84 ST NW
Directions Print
6724 84 ST NW $1,129,000
$1,129,000
Hide
Favourite

6724 84 ST NW
Edmonton, Alberta T6E2W9

MLS® Number: E4469132
5
Bedrooms
5
Bathrooms
2420
Square Feet

Listing Description

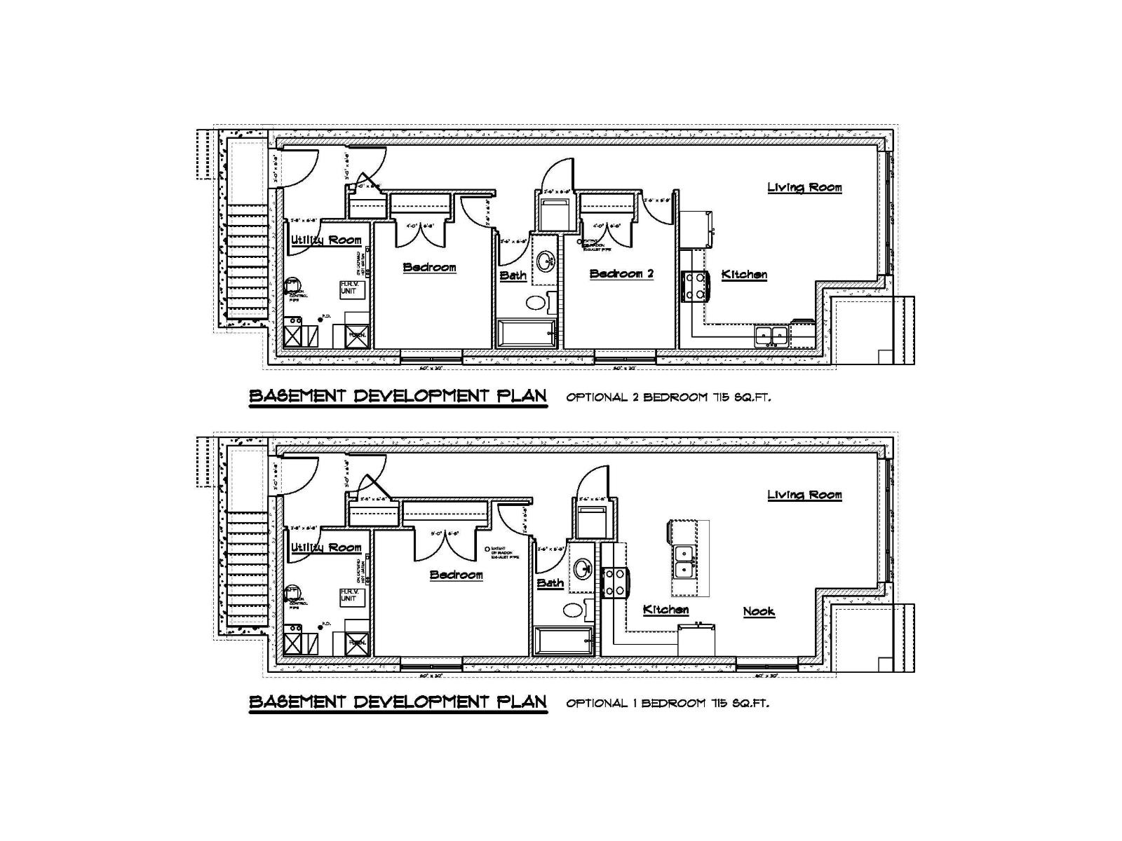
CUSTOM BUILD and work with the builder's to design your new 2400+sq.ft 3 storey home with ROOF TOP patio, unobstructed PARK & DOWNTOWN VIEWS, 3 bedrooms, 3.5 bathrooms, and a LEGAL BASEMENT SUITE! Linhan Developments builds phenomenal homes where their quality & attention to detail is second to none! This executive home has acrylic stucco and wood features, a high-end modern kitchen and finishings throughout, and is fully landscaped & fenced with a 21x21 double garage. The house is fully customizable before building starts: Do you need a main floor bedroom and full bath? 3rd floor wet bar, full bath, lounge area, and room for hot tub? YOUR DREAMS CAN COME TRUE if you act fast! The basement can be finished with an 800 sq.ft. 1 or 2 bedroom, full bathroom legal basement suite where you have completely separate & private outside suite access, or design your own media room, sanctuary, wine room, or mancave. Plus that premium view and proximity to the new LRT line, shopping, and amenities cannot be beat! (33689122)

Property Summary

Property Type
Single Family
Building Type
House
Storeys
2
Square Footage
2420 sqft
Neighbourhood Name
Argyll
Title
Freehold
Land Size
27x110ft
Built in
2026
Parking Type
Detached Garage
Time on REALTOR.ca
53 days

Legal Description

Plan :- 500KS Block :- 6 Lot :- 38

Building

Bathrooms
Total
5
Partial
1
Interior Features
Appliances Included
See remarks
Basement Features
Suite
Basement Type
Full (Finished)
Building Features
Style
Detached
Fire Protection
Smoke Detectors
Heating & Cooling
Cooling
Central air conditioning
Fireplace Type
Unknown (Gas)
Heating Type
Forced air
Neighbourhood Features
Community Features
Public Swimming Pool
Amenities Nearby
Playground, Public Transit, Schools, Shopping
Parking
Parking Type
Detached Garage

Measurements

Square Footage
2420 sqft

Rooms

Main level
Living room
Dining room
Kitchen
Den
Lower level
Bedroom 4
Bedroom 5
Second Kitchen
Upper Level
Primary Bedroom
Bedroom 2
Bedroom 3
Bonus Room
Are you interested in touring this listing?
Request a showing

780-904-4240
780-447-1695

Similar Listings

Jeneen L. Marchant