We use cookies and other technologies for functionality, security, and to provide you with a personalized experience on our online services. By continuing to use our online services, you agree to our Privacy Policy and Terms of Use. For information on how to adjust your privacy settings, visit our Cookie Policy.
Dismiss
Home ON St. Catharines - Niagara Niagara Region Welland Cordage
144 DUNKIRK ROAD
Directions Print
144 DUNKIRK ROAD $369,900
$369,900
Hide
Favourite

144 DUNKIRK ROAD
Welland (Lincoln/Crowland), Ontario L3B2N6

MLS® Number: X12665126
4
Bedrooms
2
Bathrooms
1100 - 1500
Square Feet

Listing Description

Welcome to 144 Dunkirk Road in Welland! This charming 4-bedroom, 1.5-bathroom home offers plenty of potential for a family or investor. The main floor features cozy, original details with a warm, lived-in feel. The unfinished basement is a blank canvas, ready to be finished to suit your needs. Outside, enjoy relaxing under the overhang or take advantage of the detached garage for parking or storage. Situated on a 40 x 100 foot lot in a great central location, this home is filled with character and opportunity. (41884162)

Location Description

Cross Streets: LINCOLN X CROWLAND/SOUTHWORTH. ** Directions: LINCOLN ST TO DUNKIRK RD.

Property Summary

Property Type
Single Family
Building Type
House
Storeys
1.5
Square Footage
1100 - 1500 sqft
Community Name
773 - Lincoln/Crowland
Title
Freehold
Land Size
40 x 101 FT
Age Of Building
51 to 99 years
Annual Property Taxes
$2,282
Parking Type
Detached Garage, Garage
Time on REALTOR.ca
10 days

Building

Bedrooms
Above Grade
4
Bathrooms
Total
2
Partial
1
Interior Features
Appliances Included
Water meter, Dryer, Stove, Washer, Refrigerator
Basement Type
Full (Partially finished)
Building Features
Foundation Type
Concrete, Block
Style
Detached
Rental Equipment
Water Heater
Heating & Cooling
Heating Type
Forced air (Natural gas)
Utilities
Utility Sewer
Sanitary sewer
Water
Municipal water
Exterior Features
Exterior Finish
Stucco, Vinyl siding
Parking
Parking Type
Detached Garage, Garage
Total Parking Spaces
4

Measurements

Square Footage
1100 - 1500 sqft

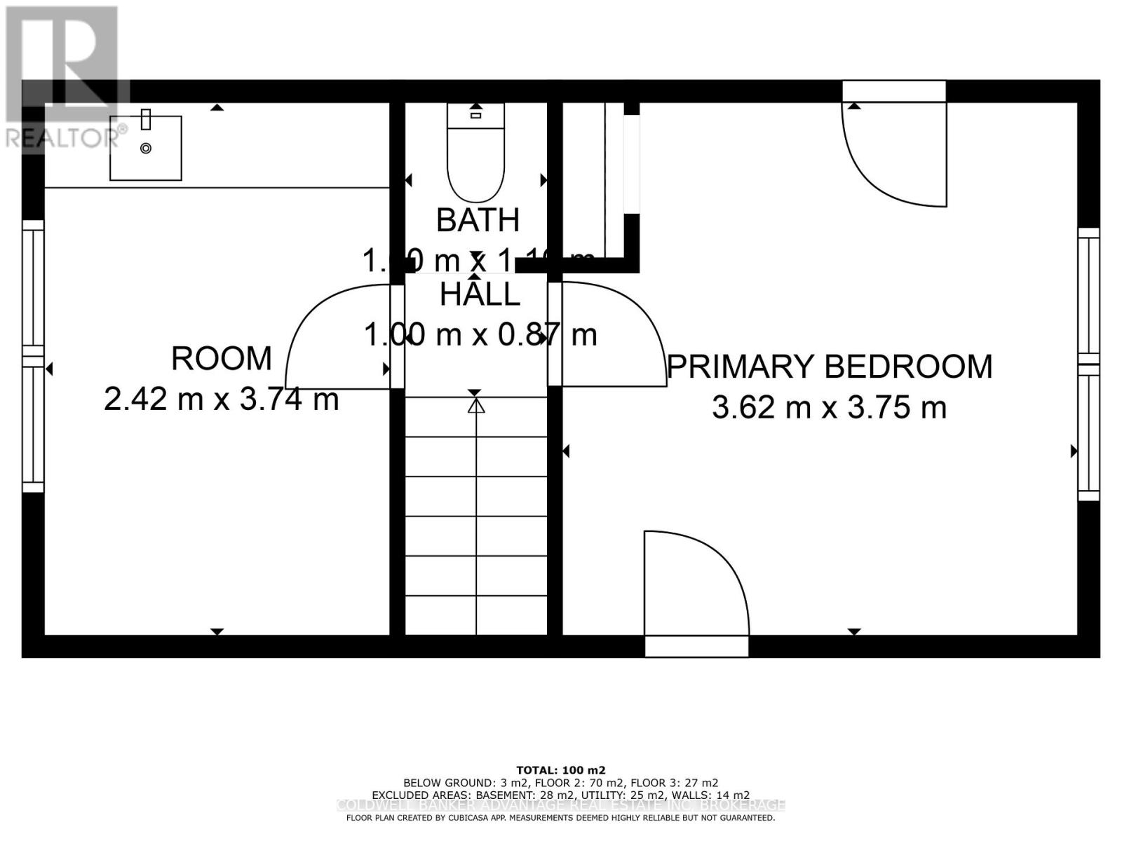
Rooms

MetricImperial
Main level
Living room
Kitchen
Bedroom
Bedroom
Foyer
Second level
Bedroom
Bedroom

Land

Lot Features
Frontage
40 ft
Land Depth
101 ft
Are you interested in touring this listing?
Request a showing

Similar Listings

ALAIN RABY