We use cookies and other technologies for functionality, security, and to provide you with a personalized experience on our online services. By continuing to use our online services, you agree to our Privacy Policy and Terms of Use. For information on how to adjust your privacy settings, visit our Cookie Policy.
Dismiss
Home ON Greater Toronto Area Durham Region Pickering West Shore
A - 971 VISTULA DRIVE
Directions Print
A - 971 VISTULA DRIVE $2,100/Monthly
$2,100/Monthly
Hide
Favourite

A - 971 VISTULA DRIVE
Pickering (West Shore), Ontario L1W2L8

MLS® Number: E12663046
2
Bedrooms
2
Bathrooms
1100 - 1500
Square Feet

Listing Description

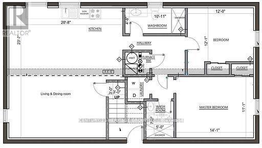
Bright, Spacious, and Modern Legal 2-Bedroom Unit! Beautifully maintained modern 2-bedroom, 2-bathroom legal basement apartment featuring a separate entrance and 1 parking space. This unit offers bright open living space, updated windows, flooring, bathrooms, kitchen appliances, pot lights, ensuite laundry, and ample storage for comfortable living. Located in the highly desirable Frenchman's Bay neighborhood, just minutes to Pickering GO Station, with easy access to Highway 401 via Whites Rd and Liverpool Rd. Enjoy being only a short walk to the beach, parks, and waterfront trails. No smoking / No pets (due to allergy concerns upstairs). (41879634)

Location Description

Bayly St. & West Shore Blvd.

Property Summary

Property Type
Single Family
Building Type
House
Storeys
1
Square Footage
1100 - 1500 sqft
Community Name
West Shore
Title
Freehold
Parking Type
No Garage
Time on REALTOR.ca
11 days

Building

Bedrooms
Above Grade
2
Bathrooms
Total
2
Interior Features
Appliances Included
Dryer, Stove, Washer, Refrigerator
Flooring
Laminate
Basement Features
Separate entrance
Building Features
Foundation Type
Concrete
Style
Detached
Architecture Style
Bungalow
Heating & Cooling
Cooling
Central air conditioning
Heating Type
Forced air (Natural gas)
Utilities
Utility Communications
High Speed Internet
Utility Sewer
Sanitary sewer
Water
Municipal water
Exterior Features
Exterior Finish
Aluminum siding, Brick
Parking
Parking Type
No Garage
Total Parking Spaces
1

Measurements

Square Footage
1100 - 1500 sqft

Rooms

MetricImperial
Basement
Kitchen
Primary Bedroom
Bedroom 2
Are you interested in touring this listing?
Request a showing

Similar Listings

VAHID SABBAGH