We use cookies and other technologies for functionality, security, and to provide you with a personalized experience on our online services. By continuing to use our online services, you agree to our Privacy Policy and Terms of Use. For information on how to adjust your privacy settings, visit our Cookie Policy.
Dismiss
Home ON Grey County West Grey
212 SPRUCE DRIVE
Directions Print
212 SPRUCE DRIVE $459,900
$459,900
Hide
Favourite

212 SPRUCE DRIVE
West Grey, Ontario N4N3B8

MLS® Number: X12662266
2
Bedrooms
2
Bathrooms
1100 - 1500
Square Feet

Listing Description

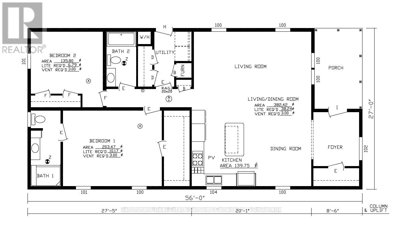
Welcome to the sought after lot 212 in White Tail Modular Home Park. This beautiful home sits on a great lot backing on the stunning countryside and a forest filled with wildlife. The large open concept design features a gourmet style kitchen with island and stainless steel appliances. The master suite offers an oversized walk in closet and ensuite. There is also a second bedroom, bathroom and laundry room. Perfect for retiring or first time home owners. This home comes with a 30 year land lease and a builder warranty. Paved driveway is included in the price. Buyer can build a single car garage and/or tool shed at their expense. (41877699)

Location Description

Cross Streets: Grey Road 4 and 30th Sideroad. ** Directions: From Durham Head West on Grey County Road 4, Turn right on 30th Sidereal, Park will be on your right.

Property Summary

Property Type
Single Family
Building Type
House
Storeys
1
Square Footage
1100 - 1500 sqft
Community Name
West Grey
Title
Freehold
Land Size
58 x 160 FT ; 58 x 160 x 39 x 166 x 85|under 1/2 acre
Age Of Building
New building
Annual Property Taxes
$0
Parking Type
No Garage
Time on REALTOR.ca
12 days

Building

Bedrooms
Above Grade
2
Bathrooms
Total
2
Interior Features
Appliances Included
Water Heater, Dishwasher, Dryer, Microwave, Stove, Washer, Window Coverings, Refrigerator
Basement Type
None
Building Features
Features
Wooded area, Irregular lot size, Flat site
Foundation Type
Slab
Style
Detached
Architecture Style
Bungalow
Structures
Porch
Heating & Cooling
Cooling
Central air conditioning
Heating Type
Forced air (Natural gas)
Utilities
Utility Type
Cable (Available), Electricity (Installed), Wireless (Available)
Utility Sewer
Septic System
Water
Drilled Well
Exterior Features
Exterior Finish
Vinyl siding
Neighbourhood Features
Amenities Nearby
Golf Nearby
Maintenance or Condo Information
Maintenance Fees
$595 Monthly
Maintenance Fees Include
Parcel of Tied Land
Parking
Parking Type
No Garage
Total Parking Spaces
6

Measurements

Square Footage
1100 - 1500 sqft

Rooms

MetricImperial
Main level
Foyer
Dining room
Kitchen
Living room
Laundry room
Primary Bedroom
Bathroom
Bathroom
Bedroom

Land

Lot Features
Frontage
58 ft
Land Depth
160 ft
Other Property Information
Easements
Sub Division Covenants
Zoning Description
MH-73
Are you interested in touring this listing?
Request a showing

Similar Listings

JEFF HISCOCK