We use cookies and other technologies for functionality, security, and to provide you with a personalized experience on our online services. By continuing to use our online services, you agree to our Privacy Policy and Terms of Use. For information on how to adjust your privacy settings, visit our Cookie Policy.
Dismiss
Home SK Greater Saskatoon Division No. 11 Saskatoon Kensington
1146 Nightingale TERRACE
Directions Print
More Photos + 2
1146 Nightingale TERRACE $598,467
$598,467
Hide
Favourite

1146 Nightingale TERRACE
Saskatoon, Saskatchewan S7L6P4

MLS® Number: SK026135
3
Bedrooms
2
Bathrooms
1490
Square Feet

Listing Description

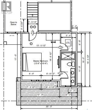
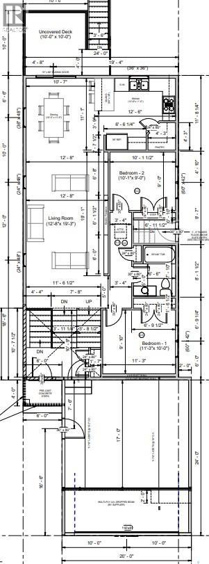
Welcome to this beautifully designed home located in the sought-after Kensington community, where everyday conveniences are just a 5-minute drive away. Enjoy close proximity to grocery stores, restaurants, medical offices, fitness facilities, and recreation centres—perfect for a balanced and connected lifestyle. As you enter, you are greeted by a spacious tiled foyer that sets the tone for the home’s thoughtful layout. The main floor features an open-concept living and dining area, ideal for both everyday living and entertaining. Tucked just off the dining space, the kitchen offers added privacy while remaining seamlessly connected. This level also includes two well-appointed bedrooms and a modern four-piece common bathroom. The upper level is dedicated to the primary retreat, featuring a generous bedroom, a walk-in closet, and a large ensuite with dual Jack-and-Jill sinks—designed for both comfort and functionality. All bedrooms are carpeted for added warmth and comfort. Throughout the home, you’ll find quality finishes, including quartz countertops and soft-close cabinetry. The living room is further enhanced by a stylish feature wall and a cozy fireplace, creating a welcoming focal point. Buyers still have the opportunity to personalize this home. Choose your preferred exterior finishes, including stonework and vinyl siding colours, as well as interior selections such as paint, countertop designs, cabinetry colours, carpet, flooring, and more. Construction is ongoing, meaning the earlier you secure the home, the more options you’ll have to truly make it your own. An optional basement development is available, offering exceptional flexibility and income potential. This upgrade includes a two-bedroom legal suite, along with an additional bedroom and bathroom on the owner’s side—an ideal setup for rental income or multi-generational living. Appliances are not included; however, the builder will provide a $4,000 appliance credit. (29240801)

Property Summary

Property Type
Single Family
Building Type
House
Square Footage
1490 sqft
Neighbourhood Name
Kensington
Title
Freehold
Land Size
4122.84 sqft
Built in
2026
Parking Type
Attached Garage, Parking Space(s) (4)
Time on REALTOR.ca
32 days

Building

Bathrooms
Total
2
Interior Features
Appliances Included
Garage door opener remote(s)
Basement Type
Full (Unfinished)
Building Features
Features
Treed, Rectangular, Double width or more driveway, Sump Pump
Architecture Style
Bi-level
Structures
Deck
Heating & Cooling
Fireplace Type
Conventional (Electric)
Heating Type
Forced air, (Natural gas)
Parking
Parking Type
Attached Garage, Parking Space(s) (4)

Measurements

Square Footage
1490 sqft

Rooms

MetricImperial
Main level
Foyer
Living room
Dining room
Kitchen
Bedroom
4pc Bathroom
Bedroom
Second level
Bedroom
4pc Ensuite bath
Basement
Other

Land

Lot Features
Frontage
34 ft
Are you interested in touring this listing?
Request a showing

Similar Listings

Hasan Kazmi