We use cookies and other technologies for functionality, security, and to provide you with a personalized experience on our online services. By continuing to use our online services, you agree to our Privacy Policy and Terms of Use. For information on how to adjust your privacy settings, visit our Cookie Policy.
Dismiss
Home QC La Haute-Yamaska Waterloo
85 Rue Nord #4
Directions Print
More Photos + 1
85 Rue Nord #4 $1,467/Monthly
$1,467/Monthly
Hide
Favourite

85 Rue Nord
#4
Waterloo, Quebec J0E2N0

MLS® Number: 19541750
3
Bedrooms
1
Bathrooms
-
Square Feet

Listing Description

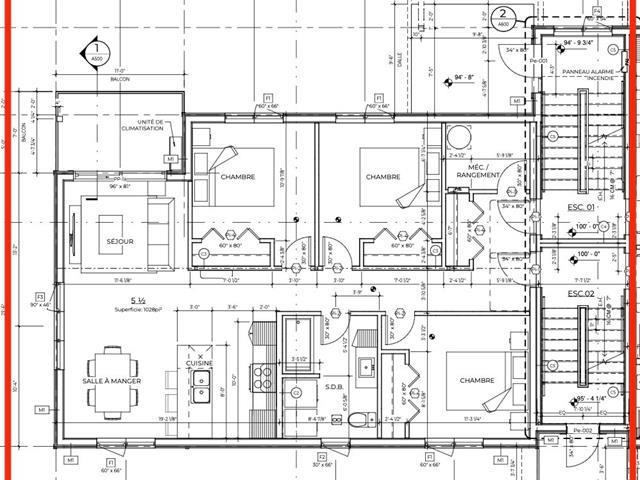
*1 mois gratuit* Le loyer affiché de 1 467 $/mois considère un mois gratuit ; le loyer au bail sera de 1 600 $/mois. Appartement de 3 chambres et 1 salle de bains de 1028 pieds carrés à Waterloo. Finition intérieure standard plus incluant des comptoirs en quartz. Le loyer inclut un stationnement, l'internet haute vitesse et un espace de rangement. Des bornes pour voitures électriques seront disponibles sur place. Situé dans un secteur résidentiel tranquille près des commodités! (48754462)

Property Summary

Property Type
Single Family
Building Type
Apartment
Storeys
4
Land Size
1120 m2
Age Of Building
Under construction
Time on REALTOR.ca
54 days

Building

Bathrooms
Total
1
Partial
0

Land

Other Property Information
Zoning Type
Residential
Farm Features
Farm Type
Other
Are you interested in touring this listing?
Request a showing

Similar Listings

Valérie Gagnon