We use cookies and other technologies for functionality, security, and to provide you with a personalized experience on our online services. By continuing to use our online services, you agree to our Privacy Policy and Terms of Use. For information on how to adjust your privacy settings, visit our Cookie Policy.
Dismiss
Home AB Greater Calgary Division No. 6 Calgary Falconridge
93, 1155 Falconridge Drive NE
Directions Print
93, 1155 Falconridge Drive NE $289,982
$289,982
Hide
Favourite

93, 1155 Falconridge Drive NE
Calgary, Alberta T3J1E1

MLS® Number: A2275726
2
Bedrooms
1
Bathrooms
1113
Square Feet

Listing Description

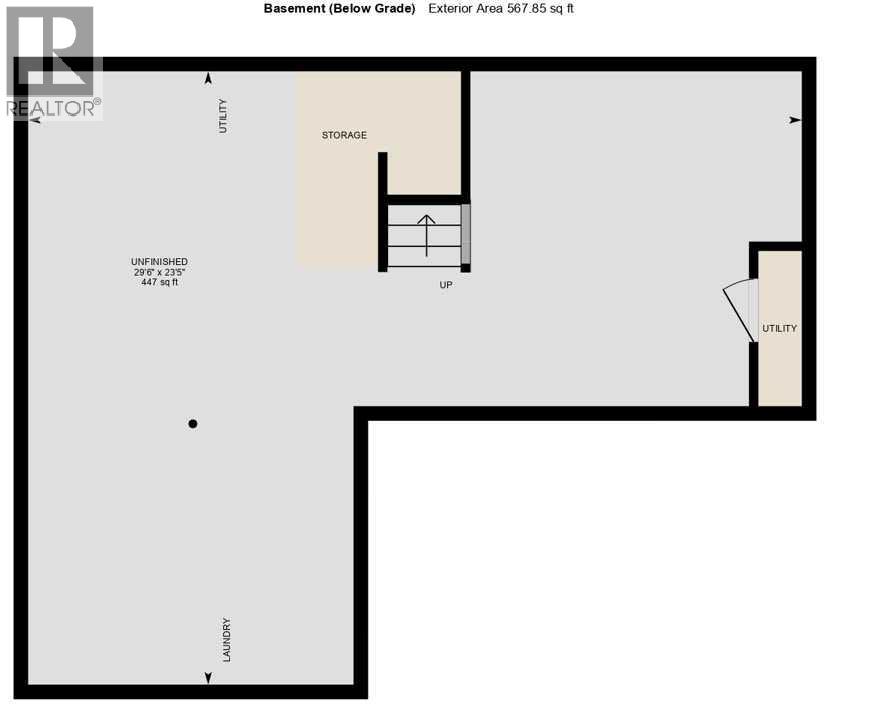
93, 1155 Falconridge Drive NE | Welcome To This Bright & Charming End-Unit 2-Storey Townhome Located In The Family-Friendly Community Of Falconridge! | The Main Floor Features A Bright Living Room, Dining Area, & Functional Kitchen | Upstairs Offers Two Spacious Bedrooms & A 4 PCE Bath, While The Undeveloped Basement Provides Laundry & Plenty Of Storage Space, Ready For Your Personal Touch | Enjoy A Fully Fenced Front Yard | Just Steps Away From A Playground – Perfect For Kids | Conveniently Close To Schools, Shopping Transit & The Popular Prairie Winds Park | This Home Offers Great Value For First-Time Buyers Or Investors Alike | Condo Fees of $364.28 Include Insurance, Maintenance Grounds, Parking, Professional Management, Water, Snow Removal, & Reserve Fund Contributions | PETS Subject to Board Approval | No Age Restrictions (31482160)

Property Summary

Property Type
Single Family
Building Type
Row / Townhouse
Storeys
2
Square Footage
1113 sqft
Community Name
Falconridge
Subdivision Name
Falconridge
Title
Condominium/Strata
Land Size
Unknown
Built in
1979
Annual Property Taxes
$1,733
Total Parking Spaces
1
Time on REALTOR.ca
39 days

Building

Bedrooms
Above Grade
2
Bathrooms
Total
1
Partial
0
Interior Features
Appliances Included
Washer, Refrigerator, Stove, Dryer
Flooring
Carpeted, Ceramic Tile, Linoleum
Basement Type
Full (Unfinished)
Building Features
Features
Level, Parking
Foundation Type
Poured Concrete
Style
Attached
Construction Material
Poured concrete, Wood frame
Structures
None
Heating & Cooling
Cooling
None
Heating Type
Forced air
Exterior Features
Exterior Finish
Concrete, Vinyl siding
Neighbourhood Features
Community Features
Pets Allowed, Pets Allowed With Restrictions
Amenities Nearby
Park, Playground, Recreation Nearby, Schools, Shopping
Maintenance or Condo Information
Maintenance Fees
$364.28 Monthly
Maintenance Fees Include
Common Area Maintenance, Ground Maintenance, Property Management, Reserve Fund Contributions, Waste Removal
Maintenance Management Company
Diversified Management
Parking
Total Parking Spaces
1

Measurements

Square Footage
1113 sqft
Total Finished Area
1113 sqft

Rooms

MetricImperial
Main level
Living room
Kitchen
Dining room
Upper Level
Primary Bedroom
Bedroom
4pc Bathroom

Land

Lot Features
Fencing
Fence
Landscape Features
Lawn
Other Property Information
Zoning Description
M-CG d100
Data provided by: Pillar 9™
Are you interested in touring this listing?
Request a showing

Similar Listings

Deric A. Burton