We use cookies and other technologies for functionality, security, and to provide you with a personalized experience on our online services. By continuing to use our online services, you agree to our Privacy Policy and Terms of Use. For information on how to adjust your privacy settings, visit our Cookie Policy.
Dismiss
Home AB Division No. 10 Tofield
47 Street
Directions Print
47 Street $150,000
$150,000
Hide
Favourite

47 Street
Tofield, Alberta T0B4J0

MLS® Number: 43690125

Listing Description

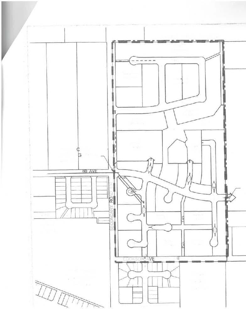
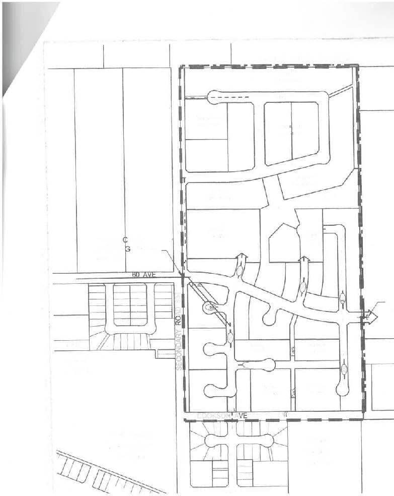
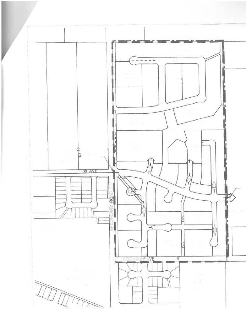
These undeveloped lands are currently leased out for hay production. Northeast Tofield ASP encourages Medium and High Density housing. Trunk sewer line exists through the SE corner of the parcel. Adequate water distribution capacity from towns existing water system according to municipality. Services by extension of electricity, natural gas, telecom and cable services present at adjacent site.Other Property Types: Commercial LandOwnership Interest: PrivateSite Services: See RemarksTitle to Land: Fee SimpleRPR Survey Available: YesSeller Rights: YesAppointment Name: Conor ClarkeAppointment Phone: 780-436-7410Paragon Listing ID: E4291723 (72890274)

Property Summary

Property Type
Vacant Land
Land Size
435600 sqft|Unknown
Time on REALTOR.ca
66 days

Legal Description

Plan :- Block :- Lot :-
Are you interested in touring this listing?
Request a showing

780-436-7410
780-436-9882

Similar Listings

Conor J. Clarke