We use cookies and other technologies for functionality, security, and to provide you with a personalized experience on our online services. By continuing to use our online services, you agree to our Privacy Policy and Terms of Use. For information on how to adjust your privacy settings, visit our Cookie Policy.
Dismiss
Home BC Greater Victoria Capital Saanich Carey
1204 Knockan Pl
Directions Print
1204 Knockan Pl $1,639,980
Next Open House
Feb
7
$1,639,980
Hide
Favourite

1204 Knockan Pl
Saanich, British Columbia V8Z7L5

MLS® Number: 1021911
6
Bedrooms
3
Bathrooms
3826
Square Feet

Listing Description

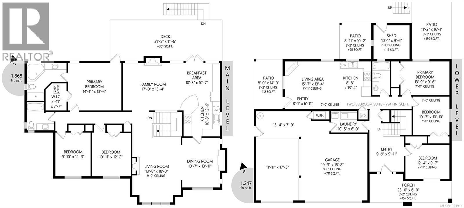
*Open House Sat, Feb 7, 200-300pm* Welcome to the private and sought-after Knockan Hill community! This beautifully maintained 6-bedroom, 3-bathroom home offers a rare blend of space, elegance, and versatility, perfect for families or investors. The main home features a triple-car garage with tons of parking and high-end finishings throughout. On the lower level, you’ll find a spacious entry, a versatile bedroom/office, and a large laundry room. Upstairs, light pours into the formal family room with a cozy gas fireplace and south-facing windows. A separate dining room also boasts south facing windows and lots of space. Around the corner you'll find a second inviting living room with another gas fireplace, and an eating nook seamlessly connected to the chef’s kitchen—complete with a gas stove, wood cabinetry, abundant storage, peninsula seating, and access to a large sunny deck. The upper floor also offers two generous sunny bedrooms, a full bath, and a luxurious primary suite with walk-in closet and spa-inspired ensuite with soaker tub. The 2-bedroom in-law suite (almost 800 sq.ft.) with private entry provides excellent income potential or space for extended family. Outdoors, enjoy a huge, private backyard with garden plots, mature hedges, and plenty of room for entertaining or relaxing. This home truly has its all-space, privacy, quality, and location! (30211712)

Open Houses

Feb 7
2-3 PM
Add to Calendar

Property Summary

Property Type
Single Family
Building Type
House
Square Footage
3826 sqft
Neighbourhood Name
Strawberry Vale
Title
Freehold
Land Size
8119 sqft
Built in
2003
Annual Property Taxes
$7,461.79
Total Parking Spaces
9
Time on REALTOR.ca
52 days

Building

Bathrooms
Total
3
Interior Features
Appliances Included
Dishwasher, Refrigerator, Stove, Washer, Dryer
Building Features
Features
Private setting, Sloping, Partially cleared, Other
Structures
Shed, Patio(s)
Heating & Cooling
Cooling
Air Conditioned
Fireplace
2
Heating Type
Baseboard heaters, Heat Pump, (Electric), (Natural gas)
Parking
Total Parking Spaces
9

Measurements

Square Footage
3826 sqft
Total Finished Area
3115 sqft

Rooms

MetricImperial
Main level
Bedroom
Bedroom
Bathroom
Ensuite
Primary Bedroom
Family room
Eating area
Kitchen
Dining room
Living room
Lower level
Patio
Storage
Patio
Patio
Entrance
Living room
Kitchen
Bathroom
Primary Bedroom
Bedroom
Laundry room
Entrance
Storage
Bedroom
Entrance
Porch

Land

Other Property Information
Zoning Type
Residential
Data provided by: Victoria Real Estate Board
Are you interested in touring this listing?
Request a showing

Similar Listings

Jaclyn McMillan