We use cookies and other technologies for functionality, security, and to provide you with a personalized experience on our online services. By continuing to use our online services, you agree to our Privacy Policy and Terms of Use. For information on how to adjust your privacy settings, visit our Cookie Policy.
Dismiss
Home ON Greater Brantford County of Brant Brantford Brantwood Park
12 WHITE OWL CRESCENT
Directions Print
12 WHITE OWL CRESCENT $495,900
Price Change on 01/12/2026
$495,900
-$25,099
$520,999
Hide
Favourite

12 WHITE OWL CRESCENT
Brantford, Ontario N3P1A2

MLS® Number: X12636328
2
Bedrooms
3
Bathrooms
1100 - 1500
Square Feet

Listing Description

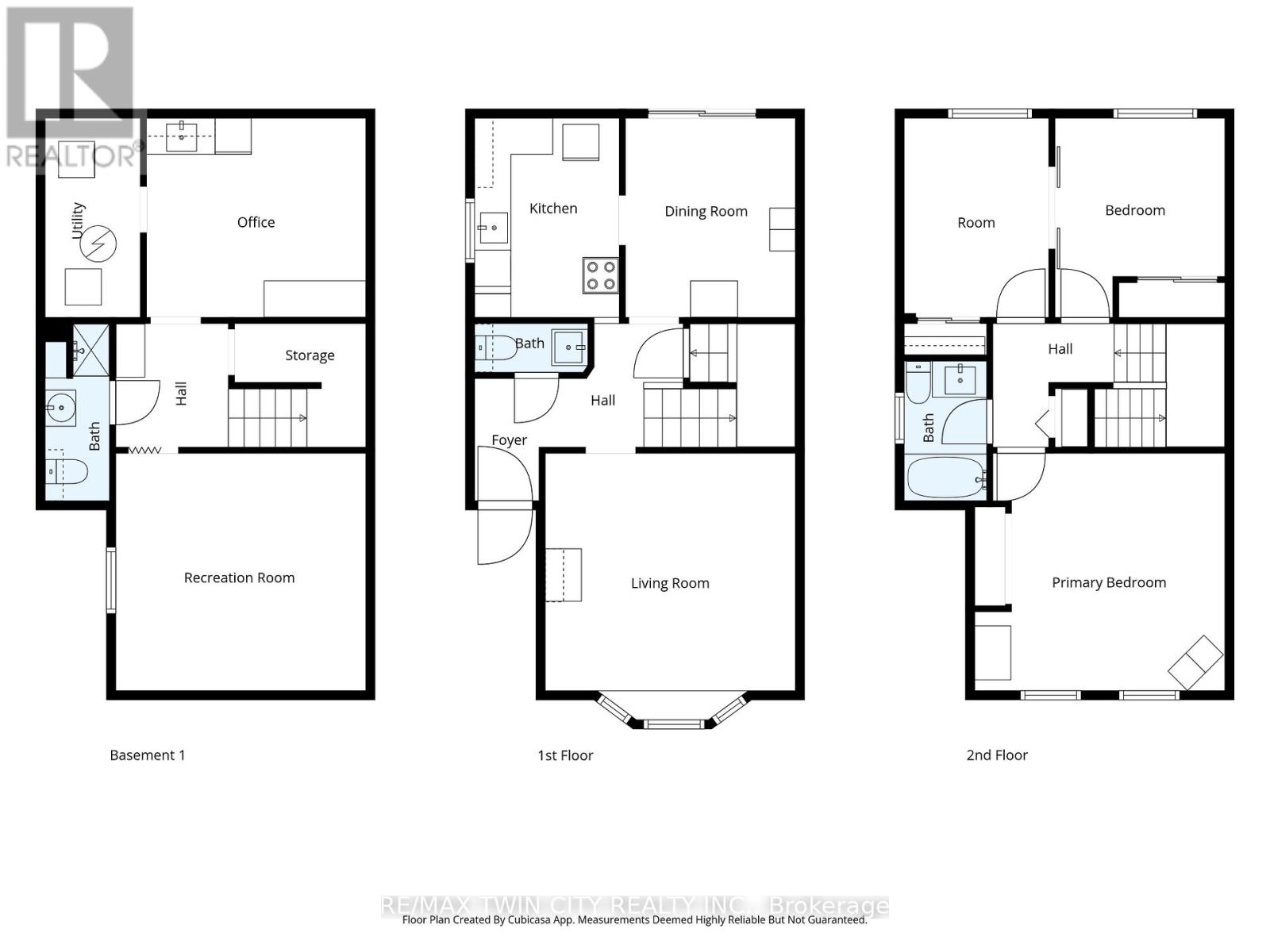
Welcome to 12 White Owl Crescent, a home with so much potential, featuring 2 bedrooms plus a den and 3 bathrooms in Brantford's desirable North End. This semi-detached home offers bright living spaces with a large bay window in the front living room, sliding doors off the dining room leading to the deck, and a finished basement with additional living space ideal for lounging, a home office or flex area, and a convenient wet bar with cabinetry. The main level includes a 2-piece powder room, the upper level is complete with a full 4-piece bathroom, and the basement offers a 3-piece bath, making this home well-suited for everyday living and growing families. The large backyard is a standout feature-perfect for kids, dogs, outdoor play, and future family plans. With major updates completed in the last five years, including windows, roof, furnace, A/C, and driveway, you can move in with confidence while adding your own personal touches over time. A fantastic opportunity for first-time buyers or a young family looking to settle into a friendly, convenient North End community. (41825829)

Location Description

Cross Streets: Viscount Rd & White Owl Cres. ** Directions: Going north on Brantwood Park Rd, take a left onto Viscount Road and then a right onto White Owl Cres.

Property Summary

Property Type
Single Family
Building Type
House
Storeys
2
Square Footage
1100 - 1500 sqft
Title
Freehold
Land Size
27.5 x 107 FT
Annual Property Taxes
$2,857.80
Parking Type
No Garage
Time on REALTOR.ca
31 days

Building

Bedrooms
Above Grade
2
Bathrooms
Total
3
Partial
2
Interior Features
Appliances Included
Water Heater, Dishwasher, Dryer, Stove, Washer, Refrigerator
Basement Type
Finished
Building Features
Foundation Type
Poured Concrete
Style
Semi-detached
Rental Equipment
Water Heater, Furnace
Heating & Cooling
Cooling
Central air conditioning
Heating Type
Forced air (Natural gas)
Utilities
Utility Sewer
Sanitary sewer
Water
Municipal water
Exterior Features
Exterior Finish
Aluminum siding, Brick Facing
Parking
Parking Type
No Garage
Total Parking Spaces
2

Measurements

Square Footage
1100 - 1500 sqft

Rooms

MetricImperial
Main level
Foyer
Bathroom
Kitchen
Dining room
Living room
Second level
Bedroom
Bedroom
Den
Bathroom
Basement
Utility room
Living room
Bathroom
Recreational, Games room

Land

Lot Features
Frontage
27 ft ,6 in
Land Depth
107 ft
Are you interested in touring this listing?
Request a showing

Similar Listings

RYAND CAMPBELL