We use cookies and other technologies for functionality, security, and to provide you with a personalized experience on our online services. By continuing to use our online services, you agree to our Privacy Policy and Terms of Use. For information on how to adjust your privacy settings, visit our Cookie Policy.
Dismiss
Home ON Hastings Belleville
UNIT B - 89 COLLEGE STREET E
Directions Print
UNIT B - 89 COLLEGE STREET E $1,950/Monthly
5 days ago
$1,950/Monthly
Hide
Favourite

UNIT B - 89 COLLEGE STREET E
Belleville (Belleville Ward), Ontario K8P2E8

MLS® Number: X12633842
2
Bedrooms
1
Bathrooms
700 - 1100
Square Feet

Listing Description

Available Feb 1! Recently renovated 2 Bed 1 Bath Upper level apartment located in central Belleville. In-Unit Laundry. Two parking space included. Option to rent out 2 car garage for storage and parking at additional cost. Ultra efficient heat pump system for heating and cooling with supplemental electric baseboard heaters.Tenant responsible for all utilities. First and Last Months Rent Deposit. 12 Month Lease. (41820623)

Location Description

College St E / Baldwin St

Property Summary

Property Type
Multi-family
Building Type
Triplex
Storeys
2
Square Footage
700 - 1100 sqft
Community Name
Belleville Ward
Parking Type
No Garage
Time on REALTOR.ca
5 days

Building

Bedrooms
Above Grade
2
Bathrooms
Total
1
Interior Features
Basement Type
None
Building Features
Features
Carpet Free, In suite Laundry
Foundation Type
Concrete
Building Amenities
Separate Electricity Meters, Separate Heating Controls
Heating & Cooling
Cooling
Wall unit
Heating Type
Heat Pump (Electric), Baseboard heaters (Electric)
Utilities
Utility Sewer
Sanitary sewer
Water
Municipal water
Exterior Features
Exterior Finish
Vinyl siding
Parking
Parking Type
No Garage
Total Parking Spaces
2

Measurements

Square Footage
700 - 1100 sqft

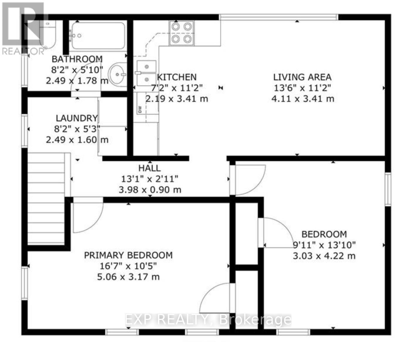
Rooms

MetricImperial
Upper Level
Kitchen
Living room
Primary Bedroom
Bedroom 2
Are you interested in touring this listing?
Request a showing

Similar Listings

George Wang