We use cookies and other technologies for functionality, security, and to provide you with a personalized experience on our online services. By continuing to use our online services, you agree to our Privacy Policy and Terms of Use. For information on how to adjust your privacy settings, visit our Cookie Policy.
Dismiss
Home ON Greater Toronto Area Toronto Scarborough Highland Creek
15 WHITE AVENUE
Directions Print
15 WHITE AVENUE $3,400/Monthly
1 day ago
$3,400/Monthly
Hide
Favourite

15 WHITE AVENUE
Toronto (Highland Creek), Ontario M1C1P1

MLS® Number: E12631050
3 + 1
Bedrooms
2
Bathrooms
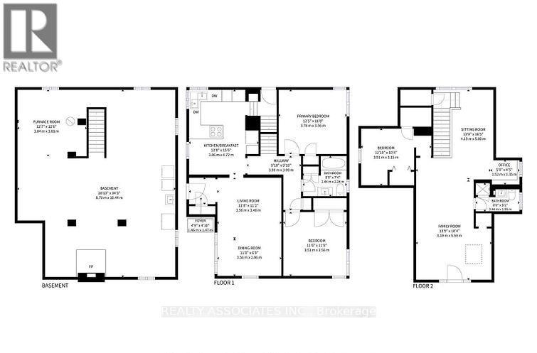
1100 - 1500
Square Feet

Listing Description

LOCATION! LOCATION! LOCATION! Beautiful Bright and Cozy Home. Offering 3 Bedrooms, 2 Washrooms and Conveniently Located A Few Steps To Go Station, Bus Stops, Hwy 401/407, UTSC, Top Ranked Schools, Shopping, Highland Creek Village, Danforth and Highland Creek Park, Chef Kitchen Renovated (2004), Quartz Counter and Backsplash 2020, Main Floor 4pc Bathroom Renovated (July 2025), New 3pc Bathroom (2025). Smart home features include Ecobee thermostat, Ring doorbell, and August smart lock. Mechanical updates provide peace of mind: furnace (2020), A/C (2021), washer/dryer (2020), plus an interior-waterproofed unfinished basement with sump pump and new windows (2023) ready for your finish, offering approx 1,000 sqft of additional living space. Move-in ready comfort, privacy, and every contemporary upgrade. (41815180)

Location Description

Old Kingston Rd and Meadowvale Rd

Property Summary

Property Type
Single Family
Building Type
House
Storeys
1.5
Square Footage
1100 - 1500 sqft
Community Name
Highland Creek
Title
Freehold
Parking Type
No Garage
Time on REALTOR.ca
1 day

Building

Bedrooms
Above Grade
3
Below Grade
1
Bathrooms
Total
2
Interior Features
Flooring
Hardwood, Tile
Basement Type
Unfinished
Building Features
Features
Carpet Free, Sump Pump
Style
Detached
Heating & Cooling
Cooling
Central air conditioning
Heating Type
Forced air (Natural gas)
Utilities
Utility Sewer
Sanitary sewer
Water
Municipal water
Exterior Features
Exterior Finish
Brick
Parking
Parking Type
No Garage
Total Parking Spaces
6

Measurements

Square Footage
1100 - 1500 sqft

Rooms

MetricImperial
Main level
Living room
Dining room
Kitchen
Bedroom
Bedroom
Bathroom
Second level
Family room
Living room
Bedroom
Office
Bathroom
Are you interested in touring this listing?
Request a showing

Similar Listings

NATHAN GURUNATHAN