We use cookies and other technologies for functionality, security, and to provide you with a personalized experience on our online services. By continuing to use our online services, you agree to our Privacy Policy and Terms of Use. For information on how to adjust your privacy settings, visit our Cookie Policy.
Dismiss
Home QC Greater Montreal Longueuil Saint-Hubert
4480 Ch. de Chambly
Directions Print
4480 Ch. de Chambly + GST + QST $660/Monthly
+ GST + QST $660/Monthly
Hide
Favourite

4480 Ch. de Chambly
Longueuil (Saint-Hubert), Quebec J3Y3M8

MLS® Number: 22552223

Listing Description

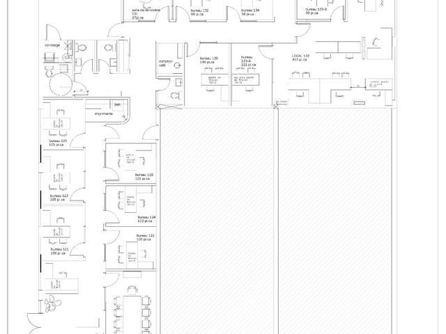
Plan de location long terme disponible sur demande: Prix par local: 13 bureau sans fenêtre +- 100 PC à $660/mois ; 2 bureaux AVEC fenêtres: 100 PC à $800/mois et 98 PC à $750/mois.Accès au hall d'entrée et accès salle de rencontre( cuisine commune) et grande salle de conférence. GST/QST must be added to the asking price (51733949)

Property Summary

Property Type
Office
Building Type
Retail
Storeys
2
Neighbourhood Name
Sir-Wilfrid-Laurier
Built in
2007
Time on REALTOR.ca
9 days

Building

Building Features
Style
Detached
Business
Business Type
Other (Offices)

Land

Other Property Information
Zoning Type
Commercial
Farm Features
Farm Type
Other
Are you interested in touring this listing?
Request a showing

Luc Fontaine