We use cookies and other technologies for functionality, security, and to provide you with a personalized experience on our online services. By continuing to use our online services, you agree to our Privacy Policy and Terms of Use. For information on how to adjust your privacy settings, visit our Cookie Policy.
Dismiss
Home ON Renfrew County Renfrew
66 ELGIN AVENUE W
Directions Print
66 ELGIN AVENUE W $649,900
$649,900
Hide
Favourite

66 ELGIN AVENUE W
Renfrew, Ontario K7V3T7

MLS® Number: X12627666

Listing Description

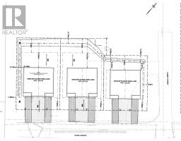
NEW DEVELOPMENT OPPORTUNITY!! Site Plan for 6 SEMI-DETACHED Bungalow Homes with each home designed to include a lower level Secondary Dwelling! A total of 12 DWELLINGS on 6 LOTS. Approx. 255' of street frontage! Located blocks from the Hospital, River, Convenience Store, Tim Hortons, Wendy's and the main Street! Sales includes the Architect Plans and Site Studies. Gas, Hydro, Water and Sewer at the street. Currently zoned CF and requires a zoning Bi-Law amendment to Residential. Newer Back Fence and cleared LOT! Do your due diligence, and see the opportunities. CALL TODAY!! (41808132)

Location Description

Cross Streets: Elgin Ave and Albert St. ** Directions: When travelling West on HWY 417, take the Renfrew Exit, turn Left on Bruce St., Left on Albert St., Lot is located at the corner of Albert St. and Elgin Ave., behind Tim Hortons.

Property Summary

Property Type
Vacant Land
Community Name
540 - Renfrew
Land Size
1.878 ac
Annual Property Taxes
$428
Time on REALTOR.ca
58 days

Building

Heating & Cooling
Cooling
Unknown
Heating Type
Not known

Measurements

Square Footage
1 hec

Land

Lot Features
Frontage
255 ft ,2 in
Land Depth
145 ft ,10 in
Other Property Information
Zoning Description
CF
Data provided by: Ottawa Real Estate Board
Are you interested in touring this listing?
Request a showing

Similar Listings

Sonat Try