We use cookies and other technologies for functionality, security, and to provide you with a personalized experience on our online services. By continuing to use our online services, you agree to our Privacy Policy and Terms of Use. For information on how to adjust your privacy settings, visit our Cookie Policy.
Dismiss
Home BC Greater Kelowna Central Okanagan Kelowna Glenmore - Clifton - Dilworth
511 Yates Road Unit# 227
Directions Print
511 Yates Road Unit# 227 $565,000
17 hours ago
$565,000
Hide
Favourite

511 Yates Road Unit# 227
Kelowna, British Columbia V1V2X2

MLS® Number: 10371001
2
Bedrooms
2
Bathrooms
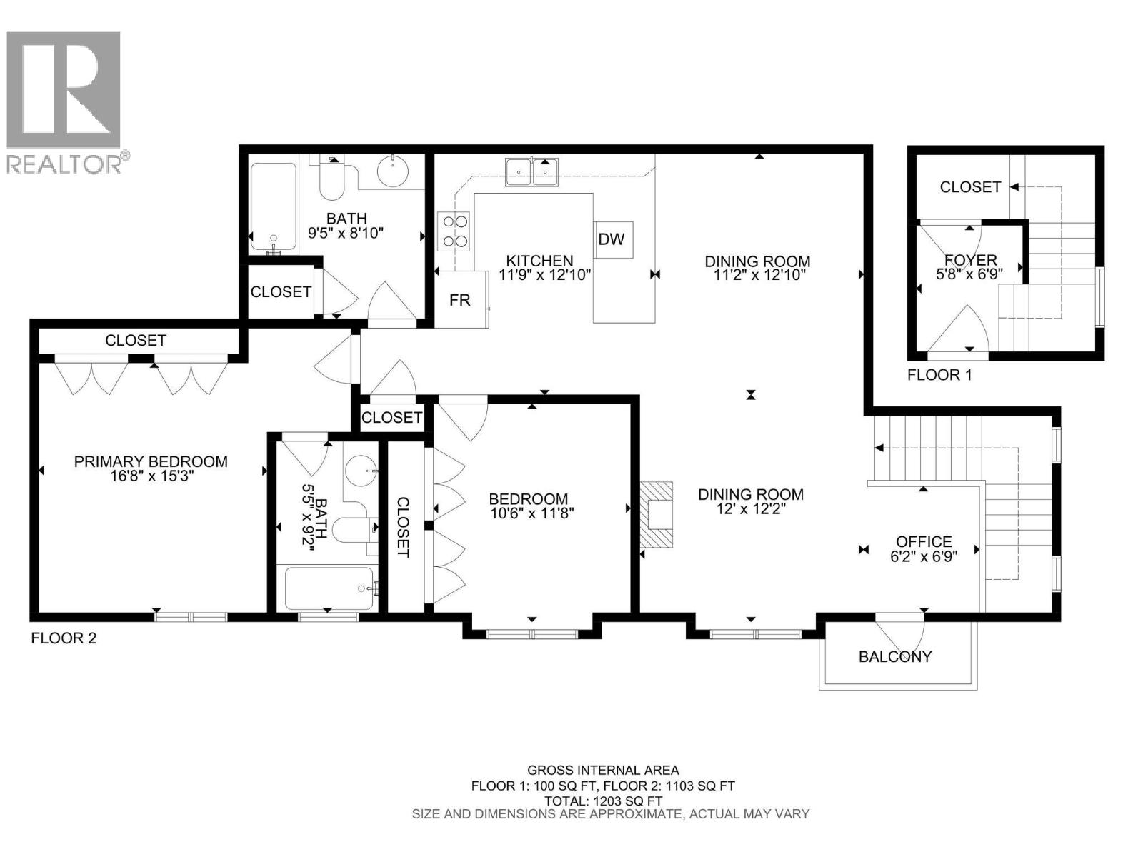
1203
Square Feet

Listing Description

Welcome to this beautifully updated 2-bedroom, 2-bathroom end-unit townhome with 2 parking spots in sought-after Glenmore! Offering 1,200 sq. ft. of bright and open living space, this home is perfect for families, pet owners, or anyone looking for a stylish and low-maintenance lifestyle. The open-concept kitchen features granite countertops, maple cabinets, and an eat-in bar, seamlessly flowing into the spacious living room with an electric fireplace. There’s even room for a home office in the living room, making it a versatile space that adapts to your lifestyle. The primary bedroom boasts its own ensuite, while the second bedroom is ideal for guests, kids, or an additional office. Enjoy efficient central heating and cooling, helping you keep costs down. Step outside and take in stunning mountain views from your front deck—the perfect spot for morning coffee or evening unwinding. The yard and green space provide plenty of room for kids and pets to play, and with no size restrictions on pets, this complex is truly pet-friendly! Parking is a breeze with a detached single garage and an additional outdoor stall. Plus, benefit from super low strata fees in a prime location, right next to Watson Road Elementary School and just minutes from shopping, dining, parks, and all essential amenities. Recent updates include new vinyl plank flooring, a new refrigerator, microwave and a new hot water tank. No neighbors below. Don’t miss out on this incredible opportunity to live in Glenmore! (39551291)

Property Summary

Property Type
Single Family
Building Type
Row / Townhouse
Storeys
2
Square Footage
1203 sqft
Community Name
Pearwood Corner
Neighbourhood Name
Glenmore
Title
Strata
Land Size
under 1 acre
Built in
2008
Annual Property Taxes
$2,808.78
Parking Type
Detached Garage (1)
Time on REALTOR.ca
17 hours

Price and Sale History

Date Status Price
May 14, 2021 Sale Closed $515,000

Building

Bathrooms
Total
2
Partial
0
Interior Features
Flooring
Vinyl
Building Features
Style
Attached
Architecture Style
Split level entry
Split Level Style
Other
Fire Protection
Sprinkler System-Fire
Heating & Cooling
Cooling
Central air conditioning
Fireplace
1
Fireplace Type
Decorative (Unknown)
Heating Type
Forced air, See remarks
Utilities
Utility Sewer
Municipal sewage system
Water
Irrigation District
Exterior Features
Roof Style
Asphalt shingle
Exterior Finish
Other
Neighbourhood Features
Community Features
Pets Allowed
Maintenance or Condo Information
Maintenance Fees
$290.26 Monthly
Parking
Parking Type
Detached Garage (1)
Total Parking Spaces
2

Measurements

Square Footage
1203 sqft

Rooms

MetricImperial
Main level
Full bathroom
Bedroom
4pc Ensuite bath
Primary Bedroom
Kitchen
Living room
Dining room
Lower level
Foyer
Are you interested in touring this listing?
Request a showing

Similar Listings

Ho Nguyen