We use cookies and other technologies for functionality, security, and to provide you with a personalized experience on our online services. By continuing to use our online services, you agree to our Privacy Policy and Terms of Use. For information on how to adjust your privacy settings, visit our Cookie Policy.
Dismiss
Home QC Greater Montreal Montréal Mercier-Hochelaga-Maisonneuve Mercier-Est / Tétreaultville
3266 Rue St-Donat
Directions Print
3266 Rue St-Donat $350,000
2 days ago
$350,000
Hide
Favourite

3266 Rue St-Donat
Montréal (Mercier/Hochelaga-Maisonneuve), Quebec H1L5L4

MLS® Number: 11341181

Listing Description

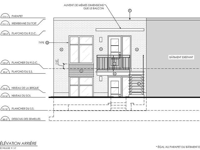
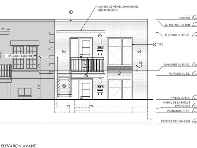
Terrain situé dans Mercier, situé près du métro Honoré-Beaugrand, des services et des transports en commun. Permis de la ville pour la construction d'yun bâtiment 1 étage, 2 logements. Plan fourni à titre informatif seulement. L'acheteur devra s'assurer de la conformité de la construction à toute autre réglementation ou règle de droit applicable. (40516174)

Property Summary

Property Type
Vacant Land
Neighbourhood Name
Mercier
Land Size
240.1 m2
Time on REALTOR.ca
2 days

Building

Building Features
Features
Flat site
Utilities
Utility Sewer
Municipal sewage system
Water
Municipal water
Neighbourhood Features
Amenities Nearby
Highway, CEGEP, Hospital, Park, Schools, Public Transit, University

Land

Lot Features
Frontage
7.65 m
Other Property Information
Zoning Type
Residential
Farm Features
Farm Type
Other
Are you interested in touring this listing?
Request a showing

Similar Listings

Alain Neveu