We use cookies and other technologies for functionality, security, and to provide you with a personalized experience on our online services. By continuing to use our online services, you agree to our Privacy Policy and Terms of Use. For information on how to adjust your privacy settings, visit our Cookie Policy.
Dismiss
Home ON Tillsonburg
75 BRAUN AVENUE
Directions Print
75 BRAUN AVENUE $520,000
2 days ago
$520,000
Hide
Favourite

75 BRAUN AVENUE
Tillsonburg, Ontario N4G0K4

MLS® Number: X12613084
3
Bedrooms
3
Bathrooms
1500 - 2000
Square Feet

Listing Description

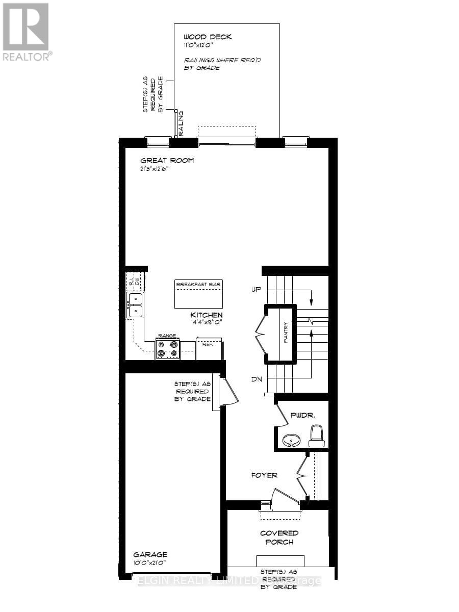
Freehold (No Condo Fees) town interior unit crafted by Hayhoe Homes offers 3 bedrooms, 2.5 bathrooms, and a single car garage. The inviting entrance features a covered porch and spacious foyer that leads to the open concept main floor with 9' ceilings, powder room, and designer kitchen showcasing quartz countertops, an island and pantry, opening to the large great room with sliding glass doors for access to the rear deck. Upstairs, the primary suite includes a large walk-in closet and private 3-piece ensuite with a walk-in shower, along with two additional bedrooms, a 4-piece main bathroom, and convenient bedroom-level laundry. The unfinished basement provides excellent development potential for a future family room and bathroom. Additional highlights include luxury vinyl plank flooring (as per plan), Tarion New Home Warranty, central air conditioning & HRV, plus many upgraded features throughout. Located in the Northcrest Estates community, just minutes from shopping, restaurants, parks, trails, and highway access. Taxes to be assessed. (41787517)

Location Description

Cross Streets: North Street E. & Braun Ave. ** Directions: North Street E. to Braun Ave.

Property Summary

Property Type
Single Family
Building Type
Row / Townhouse
Storeys
2
Square Footage
1500 - 2000 sqft
Community Name
Tillsonburg
Title
Freehold
Land Size
22.6 x 105 FT
Age Of Building
New building
Annual Property Taxes
$0
Parking Type
Attached Garage, Garage
Time on REALTOR.ca
2 days

Building

Bedrooms
Above Grade
3
Bathrooms
Total
3
Partial
1
Interior Features
Basement Type
Unfinished
Building Features
Features
Sump Pump
Foundation Type
Poured Concrete
Style
Attached
Rental Equipment
Water Heater
Structures
Deck
Heating & Cooling
Cooling
Central air conditioning
Heating Type
Forced air (Natural gas)
Utilities
Utility Sewer
Sanitary sewer
Water
Municipal water
Exterior Features
Exterior Finish
Brick, Vinyl siding
Parking
Parking Type
Attached Garage, Garage
Total Parking Spaces
3

Measurements

Square Footage
1500 - 2000 sqft

Rooms

MetricImperial
Main level
Great room

Land

Lot Features
Frontage
22 ft ,7 in
Land Depth
105 ft
Other Property Information
Zoning Description
R3
Are you interested in touring this listing?
Request a showing

Similar Listings

DAVID MATTHEWS