We use cookies and other technologies for functionality, security, and to provide you with a personalized experience on our online services. By continuing to use our online services, you agree to our Privacy Policy and Terms of Use. For information on how to adjust your privacy settings, visit our Cookie Policy.
Dismiss
Home SK Greater Saskatoon Saskatoon Brighton
139 Taskamanwa STREET
Directions Print
139 Taskamanwa STREET $509,900
4 days ago
$509,900
Hide
Favourite

139 Taskamanwa STREET
Saskatoon, Saskatchewan S7V1X3

MLS® Number: SK025301
5
Bedrooms
3
Bathrooms
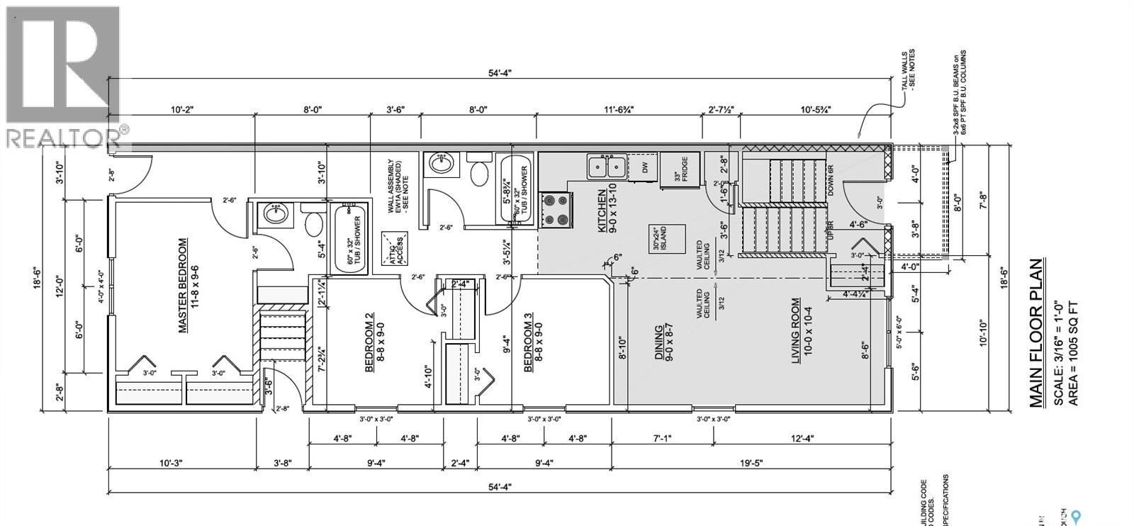
1005
Square Feet

Listing Description

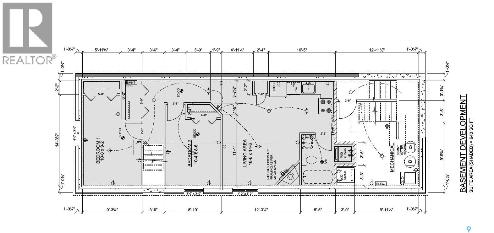
Extremely well appointed bi-level with legal two-bedroom suite! Designed and priced exclusively for savvy investors, first-time home buyers or those looking to downsize. For only $509,900.00 you get a beautifully built bilevel with the following included: Finished legal suite with separate gas and electrical meters. Finished front landscaping with concrete walkways to main door and suite door. Vaulted ceilings throughout main living area, dining room and kitchen. Luxury vinyl plank flooring throughout for great durability and aesthetic appeal (No Carpet!). Upgraded Hardie Board exterior accents. This is a pre-sale opportunity. GST & PST are included in the purchase price with any applicable rebate to builder. If purchaser(s) do not qualify for the rebates additional fees apply. Renderings were completed to be as close to the finishing as possible but should be regarded as artistic in nature. Please NOTE: Appliances are not included in the price. Limited inventory is available, contact your agent for further details! (29195388)

Property Summary

Property Type
Single Family
Building Type
House
Square Footage
1005 sqft
Neighbourhood Name
Brighton
Title
Freehold
Land Size
26.2x116.9
Built in
2025
Parking Type
Parking Pad, None, Parking Space(s) (2)
Time on REALTOR.ca
4 days

Building

Bathrooms
Total
3
Interior Features
Basement Type
Full (Partially finished)
Building Features
Features
Sump Pump
Architecture Style
Bi-level
Heating & Cooling
Fireplace Type
Conventional (Gas)
Heating Type
Forced air, (Natural gas)
Parking
Parking Type
Parking Pad, None, Parking Space(s) (2)

Measurements

Square Footage
1005 sqft

Rooms

MetricImperial
Main level
Kitchen
Dining room
Living room
Primary Bedroom
4pc Ensuite bath
Bedroom
Bedroom
4pc Bathroom
Basement
Other
Bedroom
Bedroom
4pc Bathroom
Other

Land

Lot Features
Frontage
26 ft ,2 in
Are you interested in touring this listing?
Request a showing

Similar Listings

Raychel Moore