We use cookies and other technologies for functionality, security, and to provide you with a personalized experience on our online services. By continuing to use our online services, you agree to our Privacy Policy and Terms of Use. For information on how to adjust your privacy settings, visit our Cookie Policy.
Dismiss
Home ON Greater Toronto Area Toronto North York Yonge-Doris
A - 5437 YONGE STREET
Directions Print
A - 5437 YONGE STREET $135,000
$135,000
Hide
Favourite

A - 5437 YONGE STREET
Toronto (Willowdale East), Ontario M2N5S1

MLS® Number: C12607682

Listing Description

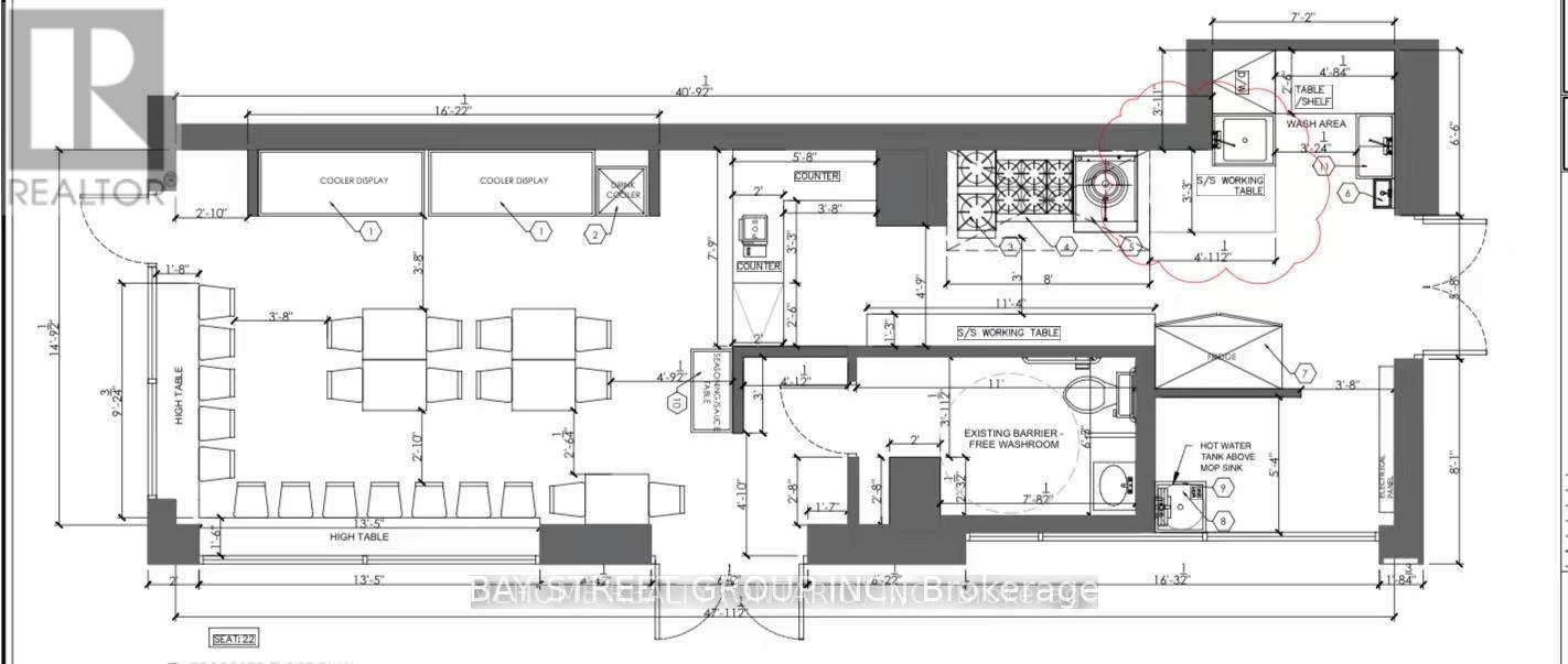
Profitable restaurant business with fully equipped kitchen located At The Centre Of North York, Yonge And Finch, Walking Distance To Subway, Surrounding With Residential Condos And Houses And Other Commercial Businesses, large outside Patio, and parking zones available front and back, extra storage space in the Shipping container at back. The business can continue operating, and the franchise brand usage rights are transferable. (41776888)

Location Description

Cross Streets: Finch Ave /Yonge St. ** Directions: S.

Property Summary

Property Type
Business
Community Name
Willowdale East
Annual Property Taxes
$0
Total Parking Spaces
3
Time on REALTOR.ca
9 days

Building

Heating & Cooling
Cooling
Fully air conditioned
Heating Type
Forced air (Natural gas)
Utilities
Water
Municipal water
Business
Business Type
Restaurant (Restaurant/pub)
Neighbourhood Features
Amenities Nearby
Highway, Public Transit
Parking
Total Parking Spaces
3

Measurements

Square Footage
900 sqft

Land

Other Property Information
Zoning Description
Commercial Retail
Are you interested in touring this listing?
Request a showing

DANIEL DONG