We use cookies and other technologies for functionality, security, and to provide you with a personalized experience on our online services. By continuing to use our online services, you agree to our Privacy Policy and Terms of Use. For information on how to adjust your privacy settings, visit our Cookie Policy.
Dismiss
Home ON Ottawa - Gatineau Ottawa East Industrial
450 TREMBLAY ROAD
Directions Print
450 TREMBLAY ROAD $825,000
$825,000
Hide
Favourite

450 TREMBLAY ROAD
Ottawa, Ontario K1G0C9

MLS® Number: X12600194
2 + 2
Bedrooms
2
Bathrooms
700 - 1100
Square Feet

Listing Description

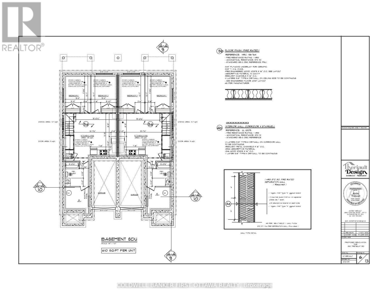
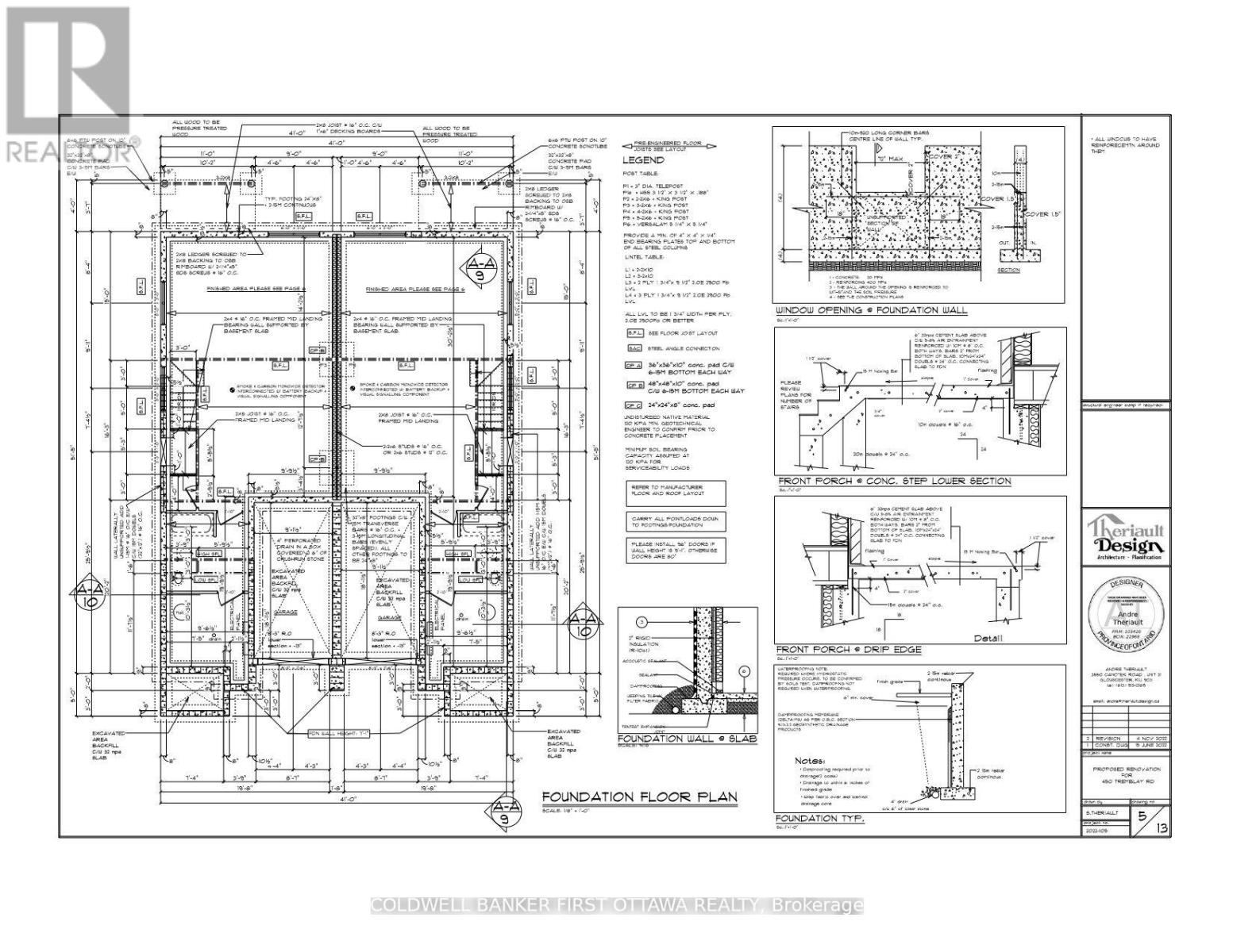
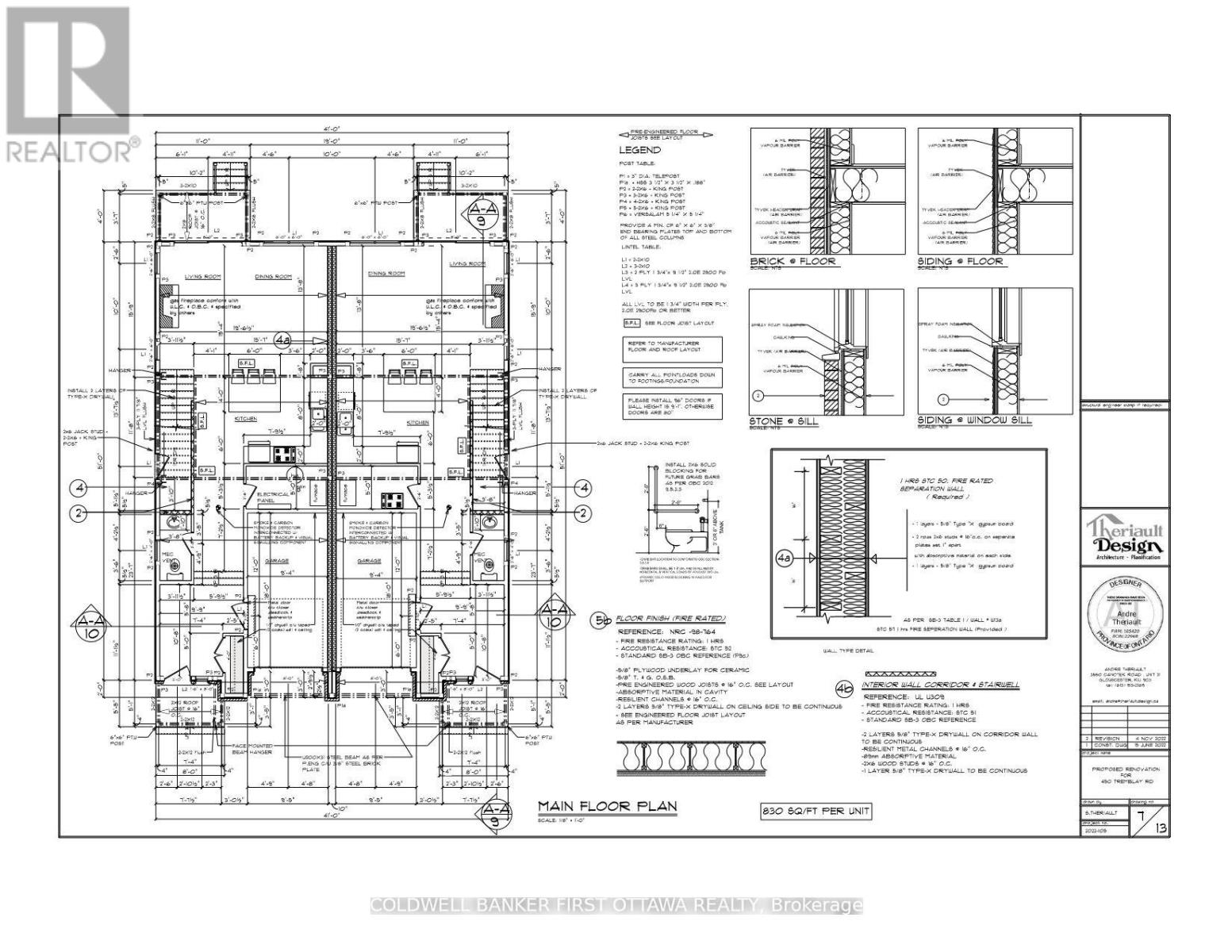
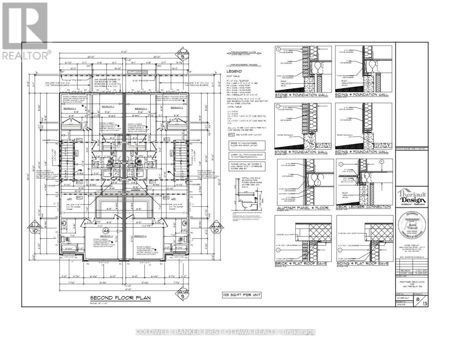
Permit ready and ready to build! A rare corner lot offering exceptional potential in a highly sought-after location. With severance already in place to build legal semi-detachedduplexes, this property presents an outstanding opportunity for builders, developers, or investors looking to capitalize on Ottawa's growing urbanmarket.This property is ideally situated steps from the Train Yards, offering access to a wide array of retail shops, restaurants, and services.Commuters will appreciate being within walking distance to the LRT, St Laurent shopping center, and just a short drive to downtown Ottawa,Costco, and Ottawa University, ensuring convenience and connectivity to all parts of the city.Included with the listing are survey, grading plan,and floorplans, providing a head start on your next project. The corner lot location enhances design flexibility, offering multiple frontages andexcellent exposure.Whether you're looking to build for resale, rental income, or long-term investment, 450 Tremblay Road delivers the ideal blendof location, infrastructure, and development readiness.Don't miss this rare opportunity in one of Ottawa's most accessible and amenity-rich neighbourhoods! R3 U Zoning. (41761667)

Location Description

Cross Streets: St Laurent Blvd & Tremblay. ** Directions: 450 TREMBLAY RD, OTTAWA ON K1G 0C9.

Property Summary

Property Type
Vacant Land
Storeys
1
Square Footage
700 - 1100 sqft
Community Name
3601 - Eastway Gardens/Industrial Park
Land Size
60 x 99 FT
Annual Property Taxes
$4,560.90
Parking Type
No Garage
Time on REALTOR.ca
43 days

Building

Bedrooms
Above Grade
2
Below Grade
2
Bathrooms
Total
2
Interior Features
Basement Features
Separate entrance
Basement Type
Finished
Building Features
Foundation Type
Poured Concrete
Architecture Style
Raised bungalow
Building Amenities
Fireplace(s)
Structures
Patio(s)
Heating & Cooling
Cooling
Central air conditioning
Fireplace
1
Heating Type
Forced air (Natural gas)
Utilities
Utility Type
Cable (Installed), Sewer (Installed)
Utility Sewer
Sanitary sewer
Water
Municipal water
Exterior Features
Exterior Finish
Brick, Stone
Pool Type
Inground pool
Parking
Parking Type
No Garage
Total Parking Spaces
2

Measurements

Square Footage
700 - 1100 sqft

Rooms

MetricImperial
Basement
Bathroom
Laundry room
Living room
Kitchen
Bedroom 3
Bedroom 4
Ground level
Living room
Kitchen
Dining room
Primary Bedroom
Bedroom 2
Bathroom

Land

Lot Features
Frontage
60 ft
Land Depth
99 ft
Landscape Features
Landscaped
Other Property Information
Zoning Description
R3M
Data provided by: Ottawa Real Estate Board
Are you interested in touring this listing?
Request a showing

Similar Listings

Raymond Chin