We use cookies and other technologies for functionality, security, and to provide you with a personalized experience on our online services. By continuing to use our online services, you agree to our Privacy Policy and Terms of Use. For information on how to adjust your privacy settings, visit our Cookie Policy.
Dismiss
Home ON Greater Oshawa Durham Region Whitby Brooklin
10 CORNERSIDE WAY
Directions Print
10 CORNERSIDE WAY $799,000
$799,000
Hide
Favourite

10 CORNERSIDE WAY
Whitby (Brooklin), Ontario L1M0L8

MLS® Number: E12600120
4
Bedrooms
3
Bathrooms
2000 - 2500
Square Feet

Listing Description

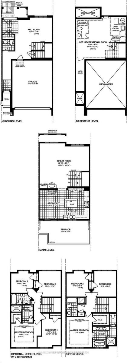
Beautiful 4 Bedroom, 3 Bath, Double Garage + 2 additional driveway parking space(total 4 parking spots) Town Home In The Heart Of Brooklin; Over 2325 sqft Plus Basement!! Open Concept Layout; Lots Of Upgrade Including 9' Ceilings On Main Floor, Hardwood Floors On Main floor, Stained Oak Stairs And Gas Fireplace In The Great Room, Kitchen with Granite Counters, Huge Island, Private Balcony Great for BBQ; Master Bedroom with Walk-In Closet and Glass Shower; Quiet Neighborhood; Minutes drive to Hwy 407 & Hwy 7, 412, and 401. (41761533)

Location Description

Thickson Rd/Winchester Rd

Property Summary

Property Type
Single Family
Building Type
Row / Townhouse
Storeys
3
Square Footage
2000 - 2500 sqft
Community Name
Brooklin
Title
Freehold
Land Size
28.4 x 78 FT
Annual Property Taxes
$6,314
Parking Type
Garage
Time on REALTOR.ca
44 days

Building

Bedrooms
Above Grade
4
Bathrooms
Total
3
Partial
1
Interior Features
Appliances Included
Dishwasher, Dryer, Stove, Washer, Refrigerator
Flooring
Hardwood
Basement Type
Full
Building Features
Foundation Type
Concrete
Style
Attached
Rental Equipment
Water Heater
Heating & Cooling
Cooling
Central air conditioning
Heating Type
Forced air (Natural gas)
Utilities
Utility Sewer
Sanitary sewer
Water
Municipal water
Exterior Features
Exterior Finish
Vinyl siding
Maintenance or Condo Information
Maintenance Fees
$253 Monthly
Maintenance Fees Include
Parcel of Tied Land
Parking
Parking Type
Garage
Total Parking Spaces
4

Measurements

Square Footage
2000 - 2500 sqft

Rooms

MetricImperial
Main level
Great room
Dining room
Kitchen
Second level
Primary Bedroom
Bedroom 2
Bedroom 3
Bedroom 4
Ground level
Recreational, Games room

Land

Lot Features
Frontage
28 ft ,4 in
Land Depth
78 ft
Are you interested in touring this listing?
Request a showing

Similar Listings

CRYSTAL LI