We use cookies and other technologies for functionality, security, and to provide you with a personalized experience on our online services. By continuing to use our online services, you agree to our Privacy Policy and Terms of Use. For information on how to adjust your privacy settings, visit our Cookie Policy.
Dismiss
Home AB Greater Calgary Calgary Midnapore
21 Midridge Green SE
Directions Print
21 Midridge Green SE $624,900
$624,900
Hide
Favourite

21 Midridge Green SE
Calgary, Alberta T2X1C9

MLS® Number: A2273365
2 + 1
Bedrooms
2
Bathrooms
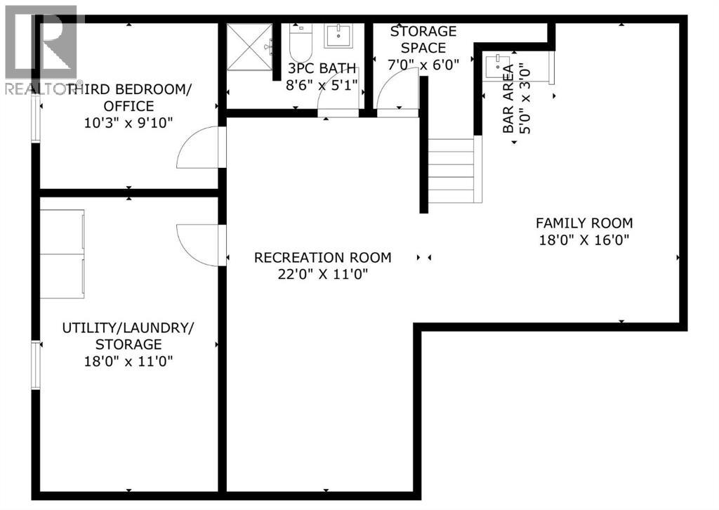
1040
Square Feet

Listing Description

Tucked away on one of the quietest cul-de-sacs in the neighbourhood, this beautiful Keith built bungalow will check all the boxes in your search. With 3 bedrooms, 2 bathrooms, a fully finished basement, and a detached double garage, you'll have space to grow store all your belongings that you just can't part with. The main floor living room was a bedroom at one time and could easily be converted back to a bedroom or office. The kitchen has seen updates over the years with refinished oak cabinets, quartz counters and stainless-steel appliances. The hardwood floors are a bonus and will stand the test of time. With other recent updates like new windows on the main floor (2020), updated vinyl siding on the house and garage, two renovated bathrooms (2023) and a 2-year-old hot water tank, the list of jobs to complete will be minimal. The yard is amazing, and you can tell how much time and love has been poured into it. The perennials, arch ways, vines, huge deck, and privacy screen will make this space easy to maintain, and even better to enjoy your time in soaking in the west sun and watching the sun set. We really couldn’t be more excited about this gorgeous house on this perfect cul-de-sac. Only steps to Fish Creek Park, Midnapore Lake, and the neighbourhood schools. We’d love to accommodate your showing needs and invite you to come check out this amazing bungalow in Midnapore! (31431953)

Property Summary

Property Type
Single Family
Building Type
House
Storeys
1
Square Footage
1040 sqft
Community Name
Midnapore
Subdivision Name
Midnapore
Title
Freehold
Land Size
381 m2|4,051 - 7,250 sqft
Built in
1978
Annual Property Taxes
$3,321
Parking Type
Detached Garage (2)
Time on REALTOR.ca
9 days

Building

Bedrooms
Above Grade
2
Below Grade
1
Bathrooms
Total
2
Partial
0
Interior Features
Appliances Included
Washer, Refrigerator, Range - Electric, Dishwasher, Dryer, Microwave
Flooring
Carpeted, Hardwood, Tile
Basement Type
Full (Finished)
Building Features
Features
Cul-de-sac, Back lane, Wet bar
Foundation Type
Poured Concrete
Style
Detached
Architecture Style
Bungalow
Heating & Cooling
Cooling
None
Fireplace
1
Heating Type
Forced air
Exterior Features
Exterior Finish
Brick
Neighbourhood Features
Community Features
Lake Privileges
Amenities Nearby
Park, Playground, Schools, Shopping, Water Nearby
Parking
Parking Type
Detached Garage (2)
Total Parking Spaces
2

Measurements

Square Footage
1040 sqft
Total Finished Area
1040 sqft

Rooms

MetricImperial
Main level
Primary Bedroom
Bedroom
3pc Bathroom
Living room
Basement
Bedroom
3pc Bathroom

Land

Lot Features
Fencing
Fence
Frontage
12.35 m
Land Depth
30.41 m
Landscape Features
Landscaped
Other Property Information
Zoning Description
R-CG
Data provided by: Pillar 9™
Are you interested in touring this listing?
Request a showing

Similar Listings

Greg Wiseman