We use cookies and other technologies for functionality, security, and to provide you with a personalized experience on our online services. By continuing to use our online services, you agree to our Privacy Policy and Terms of Use. For information on how to adjust your privacy settings, visit our Cookie Policy.
Dismiss
Home ON Wellington County Wellington North
325 ARTHUR STREET
Directions Print
325 ARTHUR STREET $2,550/Monthly
$2,550/Monthly
Hide
Favourite

325 ARTHUR STREET
Wellington North (Mount Forest), Ontario N0G2L3

MLS® Number: X12594626
2
Bedrooms
1
Bathrooms
700 - 1100
Square Feet

Listing Description

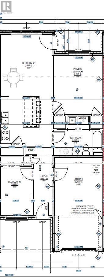
Brand new 2 bed, 1 bath townhouse with attached garage for rent in Mount Forest. This beautifully built home includes 6 brand new appliances, in floor heating, covered deck and a backyard! Walking distance to the hospital, medical center, arena and downtown. (41750070)

Location Description

Cross Streets: Arthur St & Queen St. ** Directions: 325 Arthur St, Mount Forest ON, N0G 2L3.

Property Summary

Property Type
Single Family
Building Type
Row / Townhouse
Square Footage
700 - 1100 sqft
Community Name
Mount Forest
Title
Freehold
Parking Type
Attached Garage, Garage
Time on REALTOR.ca
66 days

Building

Bedrooms
Above Grade
2
Bathrooms
Total
1
Interior Features
Basement Type
None
Building Features
Features
In suite Laundry
Foundation Type
Slab
Style
Attached
Heating & Cooling
Cooling
Central air conditioning
Heating Type
Forced air (Natural gas)
Utilities
Utility Type
Cable (Available), Electricity (Available), Sewer (Available)
Utility Sewer
Sanitary sewer
Water
Municipal water
Exterior Features
Exterior Finish
Brick
Parking
Parking Type
Attached Garage, Garage
Total Parking Spaces
3

Measurements

Square Footage
700 - 1100 sqft
Are you interested in touring this listing?
Request a showing

Similar Listings

RICHARD SHARPE