We use cookies and other technologies for functionality, security, and to provide you with a personalized experience on our online services. By continuing to use our online services, you agree to our Privacy Policy and Terms of Use. For information on how to adjust your privacy settings, visit our Cookie Policy.
Dismiss
Home ON Greater Toronto Area Toronto Scarborough Wexford-Maryvale
404 - 1101 PHARMACY AVENUE
Directions Print
404 - 1101 PHARMACY AVENUE $449,900
$449,900
Hide
Favourite

404 - 1101 PHARMACY AVENUE
Toronto (Wexford-Maryvale), Ontario M1R2H2

MLS® Number: E12594096
2
Bedrooms
2
Bathrooms
900 - 999
Square Feet

Listing Description

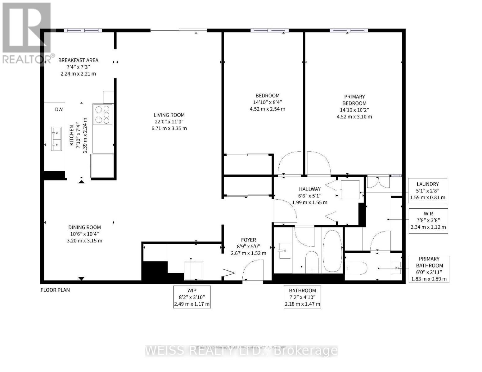
Large 2 Bdrm open concept living/dining area with eat-in kitchen and en-suite laundry. Filled with natural light and oversized master bedroom with walk in closet and ensuite. Quiet well-maintained building with great amenities. Underground parking space and locker included. Location, Location!!! Steps to schools, parks, shopping and TTC. Must be seen!!! (41749197)

Location Description

Pharmacy/Lawrence

Property Summary

Property Type
Single Family
Building Type
Apartment
Square Footage
900 - 999 sqft
Community Name
Wexford-Maryvale
Title
Condominium/Strata
Age Of Building
51 to 99 years
Annual Property Taxes
$1,478.01
Parking Type
Underground, Garage
Time on REALTOR.ca
87 days

Building

Bedrooms
Above Grade
2
Bathrooms
Total
2
Partial
1
Interior Features
Appliances Included
Dishwasher, Dryer, Freezer, Stove, Washer, Refrigerator
Basement Type
None
Building Features
Features
Balcony, Carpet Free
Foundation Type
Poured Concrete
Building Amenities
Exercise Centre, Party Room, Sauna, Visitor Parking, Storage - Locker
Heating & Cooling
Cooling
Window air conditioner
Heating Type
Baseboard heaters (Other)
Exterior Features
Exterior Finish
Brick
Neighbourhood Features
Community Features
Pets Allowed With Restrictions
Maintenance or Condo Information
Maintenance Fees
$858 Monthly
Maintenance Fees Include
Heat, Electricity, Water, Common Area Maintenance, Insurance
Maintenance Management Company
Ace Condominium Management Inc.
Parking
Parking Type
Underground, Garage
Total Parking Spaces
1

Measurements

Square Footage
900 - 999 sqft

Rooms

MetricImperial
Main level
Kitchen
Eating area
Living room
Primary Bedroom
Bedroom
Are you interested in touring this listing?
Request a showing

Similar Listings

SALVATORE (SAL) LUNETTA