We use cookies and other technologies for functionality, security, and to provide you with a personalized experience on our online services. By continuing to use our online services, you agree to our Privacy Policy and Terms of Use. For information on how to adjust your privacy settings, visit our Cookie Policy.
Dismiss
Home ON Dufferin Dufferin County Mono
17 ANDERSON AVENUE
Directions Print
17 ANDERSON AVENUE $1,599,000
Next Open House
Dec
13
$1,599,000
Hide
Favourite

17 ANDERSON AVENUE
Mono, Ontario L9W6W6

MLS® Number: X12590606
4
Bedrooms
4
Bathrooms
3000 - 3500
Square Feet

Listing Description

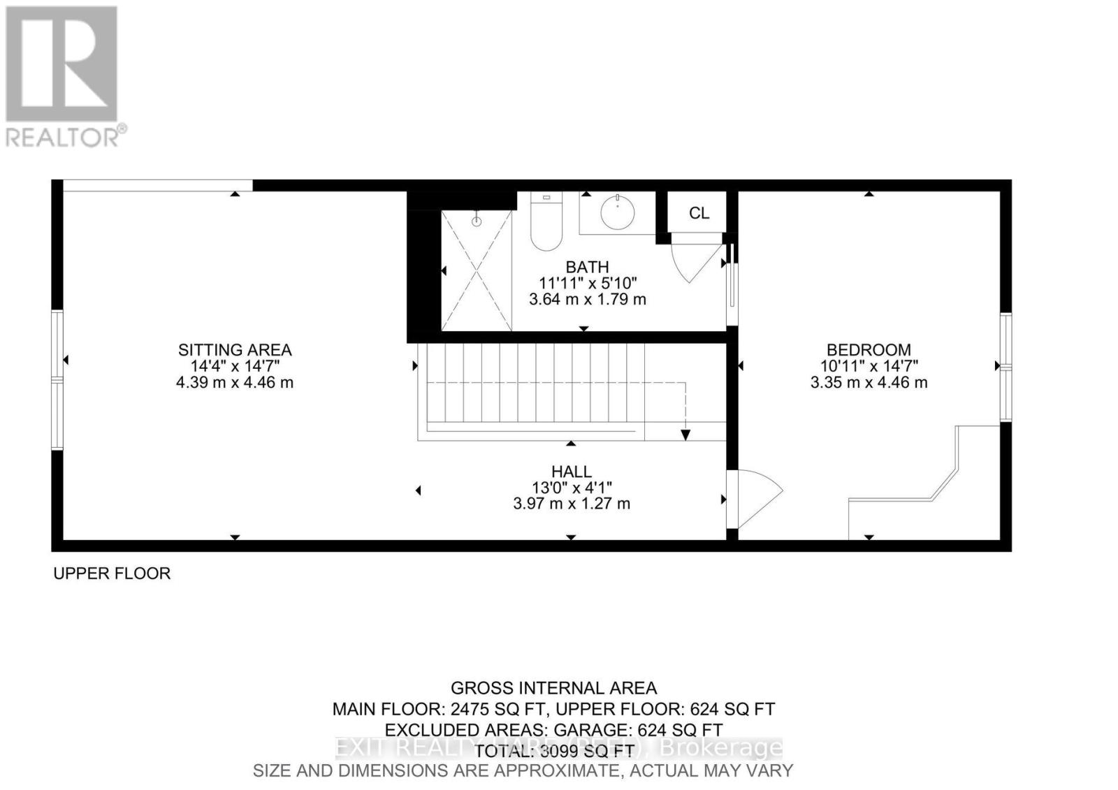
OPEN HOUSE Sat Dec 13th 2-4 PM. Welcome to this Stunning 4-bedroom, 4-bathroom bungaloft offering approx. 3100 sq. ft. finished above grade living space, a 3-car garage, and a 71' frontage lot in one of the most sought-after estate neighbourhoods in the Mono/Orangeville area. Designed for modern living, this home combines luxury, comfort, and incredible functionality. The main floor features 9' ceilings, a private den/office, and 3 generous bedrooms. Primary Bedroom features a large walk-in closet and a spacious 5 pc Ensuite Bath. A double-sided gas fireplace adds warmth and charm, connecting the living and dining rooms. The gourmet kitchen includes quartz countertops, a stylish backsplash, a large island, walk-in pantry, and a walkout to a beautifully refinished deck-ideal for outdoor dining and entertaining. The upper loft is 624 sq. ft. of thoughtfully customized space with a spacious 4th bedroom complete with a 3-piece ensuite and pocket door, along with its own living area-perfect for guests, teens, or multigenerational living. Step into the backyard and enjoy a serene and landscaped setting with a patio, gazebo, magnolia tree, rose bush, and more. The oversized driveway provides plenty of parking for family and visitors. Need more space? Approx. 2400 sq. ft. unfinished basement with rough-in for bathroom offers endless potential to create the ultimate rec room, gym, home theatre, or additional living space. This exceptional property delivers style, space, and location-an opportunity you won't want to miss! Finished Living Space + Unfinished Basement =Approx 5,500 sq ft useable space combined! (41742136)

Location Description

Cross Streets: Hwy 10/Hwy 9. ** Directions: East of 1st Line EHS/ North of Highway 9.

Open Houses

Dec 13
2-4 PM
Add to Calendar

Property Summary

Property Type
Single Family
Building Type
House
Storeys
1.5
Square Footage
3000 - 3500 sqft
Community Name
Rural Mono
Title
Freehold
Land Size
71.8 x 125.3 FT
Age Of Building
6 to 15 years
Annual Property Taxes
$7,668
Parking Type
Attached Garage, Garage
Time on REALTOR.ca
10 days

Building

Bedrooms
Above Grade
4
Bathrooms
Total
4
Partial
1
Interior Features
Appliances Included
Garage door opener remote(s), Water meter, Dishwasher, Dryer, Garage door opener, Stove, Washer, Window Coverings, Refrigerator
Basement Type
Full (Unfinished)
Building Features
Features
Level lot, Irregular lot size, Flat site, Conservation/green belt, Carpet Free, Sump Pump
Foundation Type
Poured Concrete
Style
Detached
Fire Protection
Smoke Detectors
Building Amenities
Fireplace(s)
Rental Equipment
Water Heater - Gas, Water Heater, Furnace
Structures
Deck, Porch, Patio(s)
Heating & Cooling
Cooling
Central air conditioning
Fireplace
1
Heating Type
Forced air (Natural gas)
Utilities
Utility Type
Cable (Available), Electricity (Installed), Sewer (Installed)
Utility Sewer
Sanitary sewer
Water
Municipal water
Exterior Features
Exterior Finish
Brick, Vinyl siding
Neighbourhood Features
Amenities Nearby
Park, Hospital, Schools
Parking
Parking Type
Attached Garage, Garage
Total Parking Spaces
10

Measurements

Square Footage
3000 - 3500 sqft

Land

Lot Features
Fencing
Fenced yard
Frontage
71 ft ,9 in
Land Depth
125 ft ,3 in
Other Property Information
Zoning Description
RU-9
Are you interested in touring this listing?
Request a showing

Similar Listings

STEPHEN DIGNUM