We use cookies and other technologies for functionality, security, and to provide you with a personalized experience on our online services. By continuing to use our online services, you agree to our Privacy Policy and Terms of Use. For information on how to adjust your privacy settings, visit our Cookie Policy.
Dismiss
Home ON Greater Brockville United Counties of Leeds and Grenville Brockville
10 BELVEDERE PLACE
Directions Print
10 BELVEDERE PLACE $1,250,000
$1,250,000
Hide
Favourite

10 BELVEDERE PLACE
Brockville, Ontario K6V3A4

MLS® Number: X12590036

Listing Description

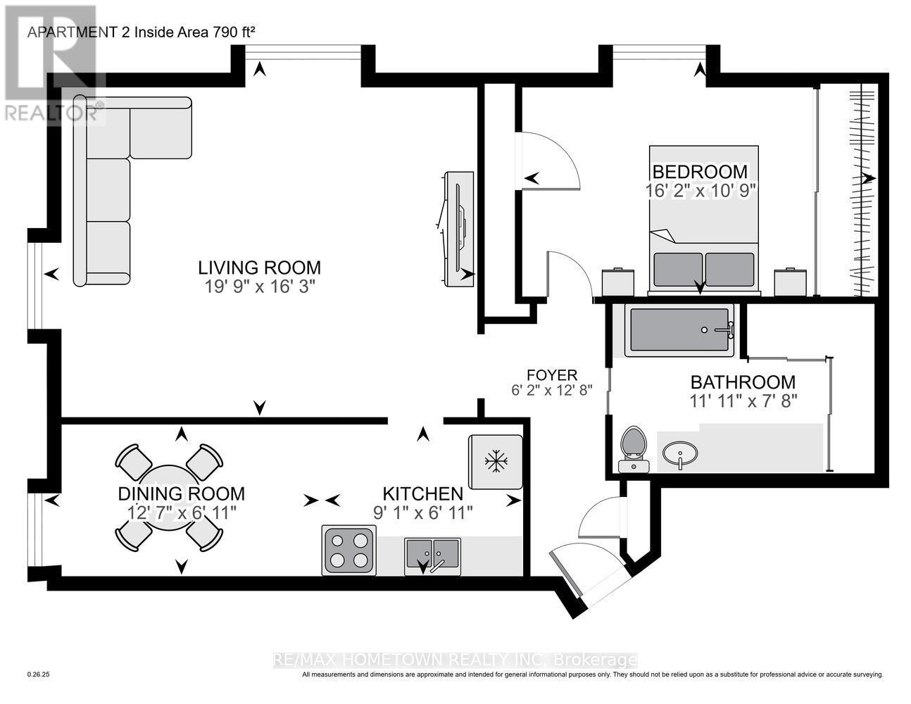
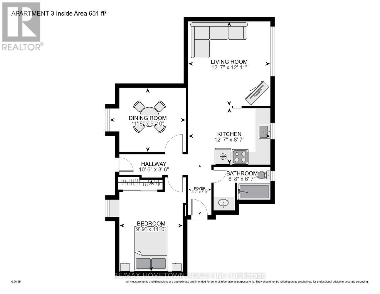
Take a look at this 12-unit building with six two-bedroom apartments and six one-bedroom apartments. One unit is all-inclusive, and every tenant has a dedicated parking space. All other tenants pay their own heat and hydro. Laundry facilities are available in the building, which adds convenience for tenants. The property sits in a lovely east-end neighborhood surrounded by single-family homes, with transit close by. Amenities are only a short drive away, and access to the 401 is quick and easy. This building offers strong upside and plenty of room for future income growth. All showings require at least 24 hours' notice. (41740754)

Location Description

Cross Streets: King Street East / Belevedere. ** Directions: Exit 698 off 401, go over the 401 overpass, and head south till you come to King St/Hwy 2 and turn left. The third street on the left-hand side is Belvedere, and the building is located on the left-hand side.

Property Summary

Property Type
Multi-family
Building Type
Multi-Family
Community Name
810 - Brockville
Land Size
0.551 ac
Age Of Building
51 to 99 years
Annual Property Taxes
$20,565.77
Time on REALTOR.ca
14 days

Building

Interior Features
Appliances Included
Water Heater
Heating & Cooling
Cooling
None
Heating Type
Baseboard heaters
Utilities
Water
Municipal water
Neighbourhood Features
Amenities Nearby
Highway, Public Transit

Measurements

Square Footage
1 ac

Land

Lot Features
Frontage
168 ft ,2 in
Other Property Information
Zoning Description
R-1 - Multiplex
Data provided by: Rideau - St. Lawrence Real Estate Board
Are you interested in touring this listing?
Request a showing

Similar Listings

Bambi Marshall