We use cookies and other technologies for functionality, security, and to provide you with a personalized experience on our online services. By continuing to use our online services, you agree to our Privacy Policy and Terms of Use. For information on how to adjust your privacy settings, visit our Cookie Policy.
Dismiss
Home ON St. Catharines - Niagara Niagara Region Niagara Falls Drummond - Victoria
5936 MAIN STREET
Directions Print
5936 MAIN STREET $1,789,000
$1,789,000
Hide
Favourite

5936 MAIN STREET
Niagara Falls (Dorchester), Ontario L2G5Z8

MLS® Number: X12589412

Listing Description

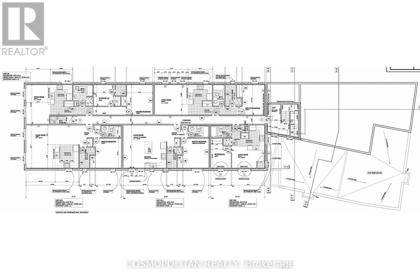
Prime commercial asset in one of Niagara Falls' fastest-growing corridors - a rare opportunity to shape a signature destination steps from the tourist district. Featuring a RAW SHELL CONDITION interior with soaring 10-11 ft ceilings, open-concept construction, and the POTENTIAL TO ADD A 3RD FLOOR, this 13,240 sq. ft. freestanding building offers unlimited potential for developers, investors, and end-users seeking maximum flexibility. Ideally positioned directly beside The Exchange, the city's brand-new 10,000 sq. ft. cultural hub and marketplace, the property benefits from exceptional foot traffic, high visibility, and public transit at the doorstep. Zoned GC - General Commercial, the site accommodates a wide variety of uses including restaurants, cafés, grocery, retail, offices, clinics, coworking, gyms, breweries, entertainment concepts, and more. The second floor is perfectly suited for residential apartments, office suites, or Airbnb-style units, with the ability to further enhance density through a third-floor addition (subject to approvals). Private on-site parking, flexible layout, and a location surrounded by billions in ongoing development - new condo towers, major hospitality projects, and the upcoming South Niagara Hospital - position this property for outstanding long-term appreciation and strong future revenue. Steps to Lundy's Lane, the Fallsview district, Casino, hotels, and major transit links to Brock University & Niagara College, this is a rare offering with endless possibilities in the heart of Niagara's revitalization. (41739750)

Location Description

Cross Streets: LUNDY'S LANE / FERRY ST / South From Ferry to Main St. ** Directions: Right from Ferry st to Main St.

Property Summary

Property Type
Retail
Community Name
216 - Dorchester
Land Size
39.7 x 186.8 FT ; Irregular
Annual Property Taxes
$6,208.42
Time on REALTOR.ca
14 days

Building

Heating & Cooling
Cooling
None, Unknown
Heating Type
Not known
Neighbourhood Features
Amenities Nearby
Public Transit

Measurements

Square Footage
13240 sqft

Land

Lot Features
Frontage
39 ft ,8 in
Land Depth
186 ft ,9 in
Other Property Information
Zoning Description
GC
Are you interested in touring this listing?
Request a showing

Robby Pruthi