We use cookies and other technologies for functionality, security, and to provide you with a personalized experience on our online services. By continuing to use our online services, you agree to our Privacy Policy and Terms of Use. For information on how to adjust your privacy settings, visit our Cookie Policy.
Dismiss
Home BC Greater Kelowna Central Okanagan Duck Lake 7
8900 Jim Bailey Road Unit# 112
Directions Print
8900 Jim Bailey Road Unit# 112 $453,800
$453,800
Hide
Favourite

8900 Jim Bailey Road Unit# 112
Kelowna, British Columbia V4V1E5

MLS® Number: 10370255
3
Bedrooms
2
Bathrooms
1356
Square Feet

Listing Description

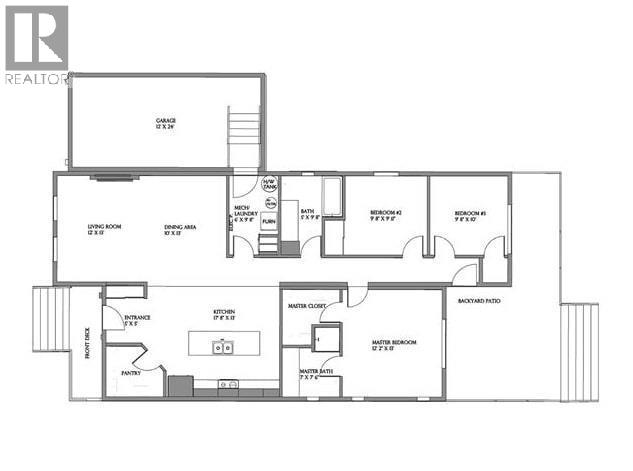
Welcome to Deer Meadows. Your new neighbourhood is conveniently located just steps away from the Rail Trial where you are connected to Wood lake and the blue waters of Kalamalka lake with trail access spanning from Vernon to Kelowna. Deer Meadows is a quick 10 minute commute from the Airport and UBCO's Campus. Rentals and pets are allowed. This Skylark home is built by Woodland Crafted Homes and features a modern layout. With a unique exterior, the 3 bedroom, 2 bathroom home design is created for those that want it all. Entering to the open-concept Kitchen, you walk through a bright front patio and are met with the highly coveted seamless living/dining space. Guest room and spacious Master Bedroom at the back of the house means optimized space distribution. Base price comes with a carport and may be upgraded to a garage. The secluded Backyard Patio opens off the beautiful Master Bedroom to ensure these homeowners get every bit of sunshine that the Okanagan has to offer. SHORT TERM RENTALS PERMITTED. Schedule your appointment today! (39517737)

Property Summary

Property Type
Single Family
Building Type
Manufactured Home
Storeys
1
Square Footage
1356 sqft
Neighbourhood Name
Lake Country East / Oyama
Land Size
under 1 acre
Built in
2025
Annual Property Taxes
$0
Parking Type
Carport
Time on REALTOR.ca
50 days

Building

Bathrooms
Total
2
Partial
0
Interior Features
Appliances Included
Refrigerator, Dishwasher, Range - Electric, Microwave
Flooring
Vinyl
Building Features
Fire Protection
Smoke Detector Only
Heating & Cooling
Cooling
Central air conditioning
Heating Type
See remarks
Utilities
Utility Sewer
Septic tank
Water
Well
Exterior Features
Roof Style
Other
Exterior Finish
Stone, Stucco
Maintenance or Condo Information
Maintenance Fees
$575 Monthly
Maintenance Fees Include
Pad Rental
Parking
Parking Type
Carport
Total Parking Spaces
2

Measurements

Square Footage
1356 sqft

Rooms

MetricImperial
Main level
3pc Ensuite bath
Primary Bedroom
Bedroom
Bedroom
4pc Bathroom
Laundry room
Dining room
Living room
Kitchen
Foyer
Are you interested in touring this listing?
Request a showing

Similar Listings

Keith Watts