We use cookies and other technologies for functionality, security, and to provide you with a personalized experience on our online services. By continuing to use our online services, you agree to our Privacy Policy and Terms of Use. For information on how to adjust your privacy settings, visit our Cookie Policy.
Dismiss
Home BC Metro Vancouver Greater Vancouver Burnaby Clinton-Glenwood
2 7510 CURRAGH AVENUE
Directions Print
2 7510 CURRAGH AVENUE $1,799,000
$1,799,000
Hide
Favourite

2 7510 CURRAGH AVENUE
Burnaby, British Columbia V5J4W2

MLS® Number: R3070717
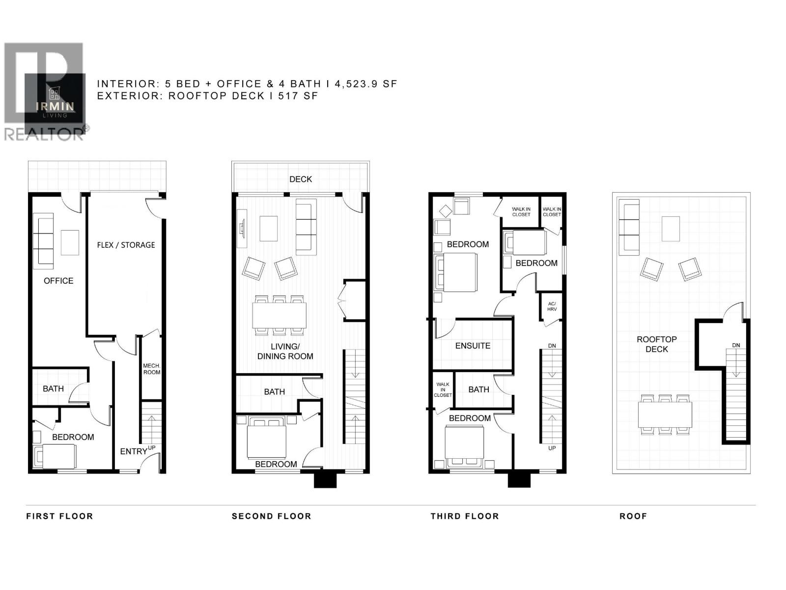
5
Bedrooms
4
Bathrooms
2262
Square Feet

Listing Description

BUILT FOR A BETTER LIVING! A refined presale duplex residence offering thoughtful design, energy-graded performance, and exceptional flexibility in a quiet Metrotown neighborhood. Intelligent spatial planning creates private, comfortable areas for every family member, complemented by air conditioning and premium appliances. A distinctive rooftop patio enhances the home with additional outdoor living, perfect for relaxation or entertaining. The ground level provides valuable opportunities for limited customization during presale, allowing you to tailor or customize the space to your needs. Walking distance to skytrain, shopping, restaurants, schools. A rare chance to own a well-crafted new home close to parks, schools, and daily amenities. *Future address will be 6118 Irmin St. Burnaby. (32214837)

Property Summary

Property Type
Multi-family
Building Type
Duplex
Square Footage
2262 sqft
Title
Strata
Land Size
10 sqft
Built in
2026
Annual Property Taxes
$5,678.35
Total Parking Spaces
1
Time on REALTOR.ca
14 days

Building

Bathrooms
Total
4
Partial
0
Building Features
Features
Central location, Cul-de-sac
Building Amenities
Laundry - In Suite
Heating & Cooling
Cooling
Air Conditioned
Neighbourhood Features
Amenities Nearby
Recreation, Shopping
Parking
Total Parking Spaces
1

Measurements

Square Footage
2262 sqft
Data provided by: Greater Vancouver REALTORS®
Are you interested in touring this listing?
Request a showing

Similar Listings

Tracy Niu