We use cookies and other technologies for functionality, security, and to provide you with a personalized experience on our online services. By continuing to use our online services, you agree to our Privacy Policy and Terms of Use. For information on how to adjust your privacy settings, visit our Cookie Policy.
Dismiss
Home AB Greater Calgary Division No. 6 Calgary Winston Heights-Mountview
2105A 7 Street NE
Directions Print
2105A 7 Street NE $1,150,000
$1,150,000
Hide
Favourite

2105A 7 Street NE
Calgary, Alberta T2E4C7

MLS® Number: A2272545
3
Bedrooms
1
Bathrooms
1947
Square Feet

Listing Description

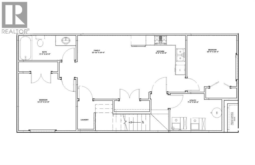
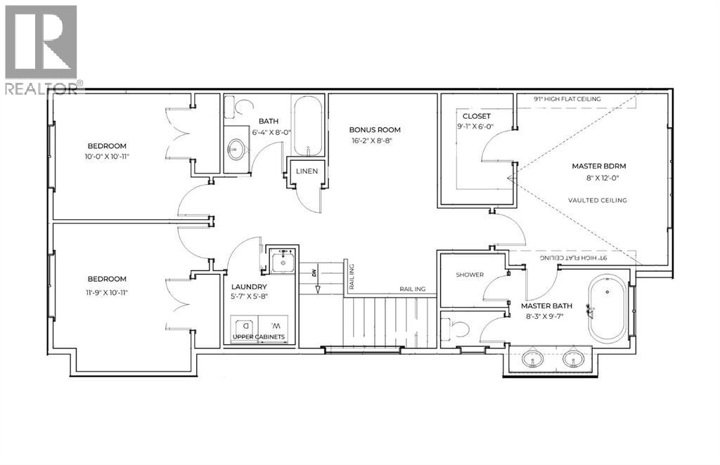
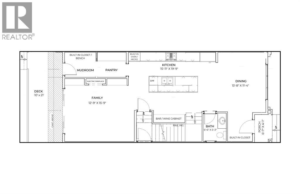
Discover this stunning UNDER-CONSTRUCTION NEW SEMI-DETACHED INFILL featuring a west-facing backyard and an unbeatable location within walking distance to The Winston Golf Club. Step inside and you’re immediately welcomed by an open and airy main floor with soaring 10 ft ceilings, 8 ft doors and hardwood flooring throughout the main and upper levels—a space that instantly feels like home. The bright, spacious dining area with large windows sets the perfect stage for hosting dinner parties or enjoying relaxed family meals. The chef-inspired kitchen is a true showpiece, featuring high-end stainless steel appliances, including a gas cooktop and built-in oven/microwave combo, a massive quartz island with breakfast bar, and sleek full-height custom cabinetry for ample storage. The walk-through pantry with built-in shelving and direct access to the rear mudroom adds everyday convenience. At the back, the inviting living room centres around a cozy fireplace and large 10 ft wide sliding door that open to the west backyard, filling the home with natural light. A stylish designer powder room completes the main level. Upstairs, you’ll find three spacious bedrooms, each thoughtfully designed for comfort. The primary suite is a luxurious retreat, featuring a spa-inspired ensuite with a heated floor, soaking tub, glass-enclosed shower, dual sinks, and a walk-in closet that offers generous storage. Two additional bedrooms, a modern 4-piece bath, a tiled laundry room with sink, and a versatile bonus space—ideal as an office, reading nook, or play area—complete the upper level. The fully developed LEGAL 2-BEDROOM SUITE (subject to permits & approval by the city) on the lower level offers flexibility for a live-in nanny, extended family, or rental income. With a private side entrance, this suite includes a well-appointed kitchen with full-height cabinetry and quartz countertops, stainless steel appliances, a spacious living area, modern 4-piece bath, separate laundry, and two generous bedrooms. Outside, enjoy your private backyard oasis with a wooden deck and full fencing, perfect for relaxation or entertaining. The double detached garage provides ample room for vehicles, tools, and storage. Located in the vibrant community of Winston Heights, you’ll love the friendly atmosphere and nearby amenities—top-rated schools, grocery stores, recreation and aquatic centre, golf course, soccer fields, tennis courts, and off-leash dog parks. Scenic walking and cycling pathways are just steps away, while shopping, dining, and downtown Calgary are only a short drive with easy access to 16 Ave and Deerfoot Trail. Both sides are available. (31416588)

Property Summary

Property Type
Single Family
Building Type
Duplex
Storeys
2
Square Footage
1947 sqft
Community Name
Winston Heights/Mountview
Subdivision Name
Winston Heights/Mountview
Title
Freehold
Land Size
3000 sqft|0-4,050 sqft
Built in
2026
Parking Type
Detached Garage (2)
Time on REALTOR.ca
14 days

Building

Bedrooms
Above Grade
3
Bathrooms
Total
1
Partial
0
Interior Features
Appliances Included
Refrigerator, Cooktop - Gas, Range - Electric, Dishwasher, Oven - Built-In, Hood Fan, Washer/Dryer Stack-Up
Flooring
Ceramic Tile, Hardwood, Vinyl Plank
Basement Features
Separate entrance, Suite
Basement Type
Full (Finished)
Building Features
Features
Back lane, Gas BBQ Hookup
Foundation Type
Poured Concrete
Style
Semi-detached
Construction Material
Wood frame
Fire Protection
Smoke Detectors
Structures
Deck
Heating & Cooling
Cooling
See Remarks
Fireplace
1
Heating Type
Forced air, (Natural gas)
Exterior Features
Exterior Finish
Stucco
Neighbourhood Features
Community Features
Golf Course Development
Amenities Nearby
Golf Course, Playground, Recreation Nearby, Schools, Shopping
Parking
Parking Type
Detached Garage (2)
Total Parking Spaces
2

Measurements

Square Footage
1947 sqft
Total Finished Area
1947 sqft

Rooms

MetricImperial
Main level
Family room
Kitchen
Dining room
Second level
Primary Bedroom
Bedroom
Bedroom
Bonus Room
5pc Bathroom

Land

Lot Features
Fencing
Fence
Frontage
7.62 m
Land Depth
36.57 m
Landscape Features
Landscaped
Other Property Information
Zoning Description
R-CG
Data provided by: Pillar 9™
Are you interested in touring this listing?
Request a showing

Similar Listings

Ibadat Bal