We use cookies and other technologies for functionality, security, and to provide you with a personalized experience on our online services. By continuing to use our online services, you agree to our Privacy Policy and Terms of Use. For information on how to adjust your privacy settings, visit our Cookie Policy.
Dismiss
Home QC Portneuf Pont-Rouge
65 Rue des Spirées
Directions Print
65 Rue des Spirées $539,550 + GST + QST
$539,550 + GST + QST
Hide
Favourite

65 Rue des Spirées
Pont-Rouge, Quebec G3H0K3

MLS® Number: 12285735
3
Bedrooms
1
Bathrooms
1352
Square Feet

Listing Description

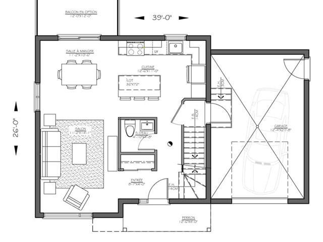
À construire cottage avec garage. Options de 2 ou 3 chambres à l'étage. Cuisine avec grand îlot. Construction selon vos goûts, nous avons également d'autres modèles qui peuvent être construits sur ce terrain. Secteur tranquille et familial. Photos à titre indicatif. Terrain de 15 830 pc. Un appel suffit ... GST/QST must be added to the asking price (41425565)

Property Summary

Property Type
Single Family
Building Type
House
Storeys
2
Square Footage
1352 sqft
Land Size
15830 sqft
Age Of Building
New building
Parking Type
Other, Garage
Time on REALTOR.ca
16 days

Building

Bathrooms
Total
1
Partial
1
Interior Features
Basement Features
Six feet and over
Basement Type
Full (Unfinished)
Building Features
Features
Melamine cupboard, PVC window, Sliding windows, Crank windows
Foundation Type
Poured Concrete
Style
Detached
Heating & Cooling
Heating Type
(Electric)
Utilities
Utility Sewer
Municipal sewage system
Water
Municipal water
Exterior Features
Roof Style
Asphalt shingle
Neighbourhood Features
Amenities Nearby
Highway, CEGEP, Golf Course, Park, Schools, Ski hill, Public Transit, University
Parking
Parking Type
Other, Garage
Total Parking Spaces
3

Measurements

Square Footage
1352 sqft

Rooms

MetricImperial
Main level
Other
Living room
Dining room
Kitchen
Partial bathroom
Second level
Primary Bedroom
Bedroom
Bedroom
Laundry room
Bathroom

Land

Other Property Information
Zoning Type
Residential
Farm Features
Farm Type
Other
Are you interested in touring this listing?
Request a showing

Similar Listings

Pierrette Ghielen