We use cookies and other technologies for functionality, security, and to provide you with a personalized experience on our online services. By continuing to use our online services, you agree to our Privacy Policy and Terms of Use. For information on how to adjust your privacy settings, visit our Cookie Policy.
Dismiss
Home ON Greater Toronto Area Toronto North York Westminster Westminster-Branson
503 - 100 ANTIBES DRIVE
Directions Print
503 - 100 ANTIBES DRIVE $3,000/Monthly
Price Change on 12/08/2025
$3,000/Monthly
-$200/Monthly
$3,200/Monthly
Hide
Favourite

503 - 100 ANTIBES DRIVE
Toronto (Westminster-Branson), Ontario M2R3N1

MLS® Number: C12576170
3 + 1
Bedrooms
2
Bathrooms
1200 - 1399
Square Feet

Listing Description

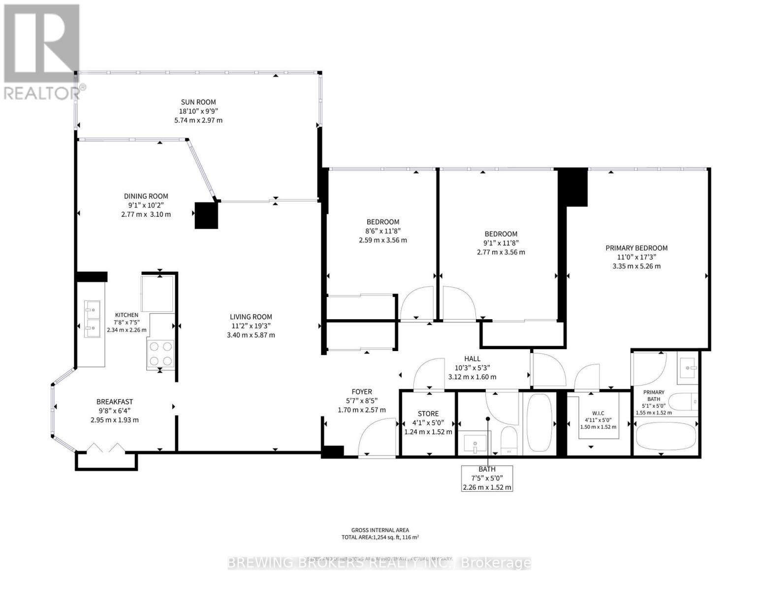
Spacious 3+1 bedroom, 2-bath corner condo at 100 Antibes Dr offering over 1,200 sq ft of true family-sized living in a highly convenient North York neighbourhood. This bright, well-laid-out suite features a large open-concept living and dining area, an eat-in kitchen with an east-facing bay window, three full bedrooms, and an enclosed solarium ideal as a 4th bedroom or home office.Prior to occupancy, the unit will be professionally painted wherever required, and all carpeting will be deep cleaned to ensure a fresh and comfortable move-in experience. All utilities and parking are an additional $200 per month, covering heat, hydro, water, A/C, cable TV, and one underground parking space.The building offers excellent amenities such as an exercise room, party/meeting room, sauna, and visitor parking. Located steps to TTC, Antibes Community Centre, G. Ross Lord Park, grocery stores, libraries, and top-rated schools including Northview Heights SS, Rockford PS, and Charles H. Best MS.Available January 1, this rare oversized suite provides exceptional space, value, and convenience. (41712467)

Location Description

Cross Streets: Bathurst And Finch. ** Directions: on Antibes road.

Property Summary

Property Type
Single Family
Building Type
Apartment
Square Footage
1200 - 1399 sqft
Community Name
Westminster-Branson
Title
Condominium/Strata
Parking Type
Underground, Garage
Time on REALTOR.ca
16 days

Building

Bedrooms
Above Grade
3
Below Grade
1
Bathrooms
Total
2
Interior Features
Flooring
Carpeted
Basement Type
None
Building Features
Building Amenities
Exercise Centre, Party Room, Sauna, Visitor Parking
Heating & Cooling
Cooling
Central air conditioning
Heating Type
Forced air (Natural gas)
Exterior Features
Exterior Finish
Brick
Neighbourhood Features
Community Features
Pets not Allowed, Community Centre
Amenities Nearby
Park, Place of Worship, Public Transit, Schools
Maintenance or Condo Information
Maintenance Management Company
Comfort Property Management Inc. (905) 605-7788
Parking
Parking Type
Underground, Garage
Total Parking Spaces
1

Measurements

Square Footage
1200 - 1399 sqft

Rooms

MetricImperial
Ground level
Living room
Dining room
Kitchen
Bedroom
Bedroom 2
Bedroom 3
Solarium
Foyer
Storage
Are you interested in touring this listing?
Request a showing

Similar Listings

KATE NACCARATO