We use cookies and other technologies for functionality, security, and to provide you with a personalized experience on our online services. By continuing to use our online services, you agree to our Privacy Policy and Terms of Use. For information on how to adjust your privacy settings, visit our Cookie Policy.
Dismiss
Home BC Greater Kelowna Central Okanagan Kelowna McKinley
3434 McKinley Beach Drive Unit# 408
Directions Print
3434 McKinley Beach Drive Unit# 408 $2,600,000
$2,600,000
Hide
Favourite

3434 McKinley Beach Drive Unit# 408
Kelowna, British Columbia V1V0H3

MLS® Number: 10369712
2
Bedrooms
3
Bathrooms
2308
Square Feet

Listing Description

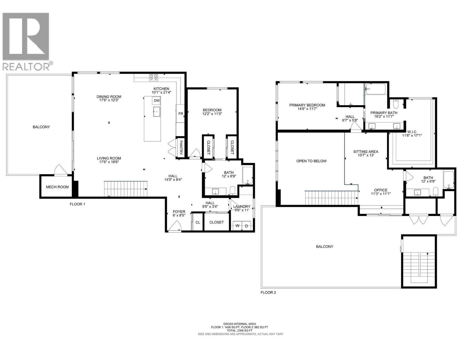
Experience luxury lakeside living in this brand-new modern penthouse in Granite III at McKinley Beach. Panoramic Okanagan Lake views set the tone the moment you walk in, framed by soaring vaulted ceilings and floor-to-ceiling windows that fill the open-concept space with natural light. The gourmet kitchen features an entertainment-sized island with wine fridge, high-gloss cabinetry, and professional-grade appliances. The great room flows onto a spacious lake-view terrace, perfect for outdoor dining, complete with built-in heaters for year-round comfort. This level also includes a generous bedroom with its own ensuite, all with heated tile floors. A dramatic two-storey tiled feature wall borders the floating glass staircase leading to the loft-style upper lounge, ideal as a reading nook, media room, or office. Voice-activated automatic blinds enhance comfort throughout. The primary suite is a private retreat, offering unobstructed lake views, a designer walk-in closet, and a stunning 5-piece marble ensuite with steam shower and heated tiles. The expansive rooftop terrace features an automated louvred roof with built-in fans, grilling area, hot-tub rough-in, and terrace heaters, creating an unmatched outdoor oasis. Steps from the sandy beach, marina, trails, parks, tennis courts, and outdoor gym, Granite residents also enjoy a sauna and outdoor pool. Three parking stalls sit conveniently next to the elevator. This penthouse delivers Okanagan luxury at its finest. (39502628)

Property Summary

Property Type
Single Family
Building Type
Apartment
Storeys
2
Square Footage
2308 sqft
Community Name
Granite
Neighbourhood Name
McKinley Landing
Title
Strata
Land Size
under 1 acre
Built in
2023
Annual Property Taxes
$8,057.69
Parking Type
Parkade
Time on REALTOR.ca
74 days

Building

Bathrooms
Total
3
Partial
0
Interior Features
Appliances Included
Refrigerator, Dishwasher, Dryer, Range - Electric, Microwave, Washer, Oven - Built-In
Building Features
Features
Central island, Two Balconies
Present Use
Community Multi-Tenant
Storage
Storage, Locker
Heating & Cooling
Cooling
Central air conditioning
Heating Type
Baseboard heaters, (Electric), Forced air
Utilities
Utility Sewer
Municipal sewage system
Water
Irrigation District
Exterior Features
Roof Style
Other
Neighbourhood Features
Amenities Nearby
Golf Nearby, Park
Maintenance or Condo Information
Maintenance Fees
$965.30 Monthly
Parking
Parking Type
Parkade
Total Parking Spaces
3

Measurements

Square Footage
2308 sqft

Rooms

MetricImperial
Main level
Dining room
Living room
Laundry room
Kitchen
Bedroom
4pc Bathroom
Second level
Other
Primary Bedroom
5pc Ensuite bath
4pc Bathroom

Land

Lot Features
Landscape Features
Landscaped
View
Lake view, Mountain view, Valley view, View (panoramic)
Other Property Information
Access
Easy access
Waterfront Features
Waterfront
Other
Are you interested in touring this listing?
Request a showing

236-457-6986

Similar Listings

Ian Tang