We use cookies and other technologies for functionality, security, and to provide you with a personalized experience on our online services. By continuing to use our online services, you agree to our Privacy Policy and Terms of Use. For information on how to adjust your privacy settings, visit our Cookie Policy.
Dismiss
Home ON St. Catharines - Niagara Niagara Region St. Catharines Grantham Grantham West
12 DUNCAN DRIVE
Directions Print
12 DUNCAN DRIVE $659,000
Price Change on 12/04/2025
$659,000
-$16,000
$675,000
Hide
Favourite

12 DUNCAN DRIVE
St. Catharines (Vine/Linwell), Ontario L2N3N9

MLS® Number: X12565134
3 + 1
Bedrooms
2
Bathrooms
1100 - 1500
Square Feet

Listing Description

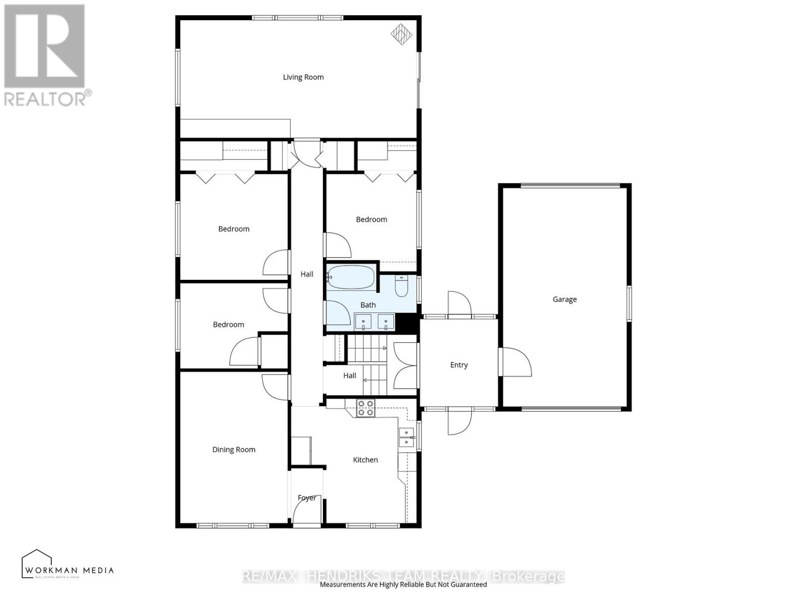
Located in the heart of the north end, within walking distance to the neighbouhood park and school, this meticulously maintained 1,400 square foot bungalow sits on a quiet, tree-lined street where families walk their dogs and neighbours still wave to one another. The stamped-concrete 4 car driveway and well-kept exterior immediately set the tone. A large detached garage with drive-through rear door adds convenience and versatility, while the enclosed breezeway keeps everyday coming and going comfortable in any season. Inside, the home feels warm, inviting, and exceptionally cared for. Hardwood flooring flows through the front living/dining area and then onwards to the hallway and bedrooms. The white and bright kitchen features stainless steel appliances, tiled backsplash, pot lighting, and a large window overlooking the front yard perfect for watching kids arrive from school or keeping an eye out for arriving guests or deliveries. The original living room is currently styled as a spacious dining room, although the layout easily adapts to suit your lifestyle. At the back of the home, a large main floor family room is perfect for everyday living. It features brand-new carpeting (November 2025), a freestanding gas fireplace, beamed ceiling, sliding patio doors, and a picture window overlooking the backyard. The 5-piece bathroom includes double sinks and a combined jetted tub with shower. The lower level currently functions as a full primary suite with vinyl plank flooring, pot lighting, a walk-in closet, rough-in for bar/kitchenette, and a modern 4-piece ensuite with tiled shower, glass panel, and double sinks. Mechanical updates include new furnace/hwt (2020), central air (2023), upgraded insulation in attic to R40 (2020), roof shingles (2024) plus all updated windows. The fully fenced, big and private backyard is designed for real-life enjoyment. (41690139)

Location Description

Cross Streets: Linwell Rd. ** Directions: Linwell Rd to Duncan Dr.

Property Summary

Property Type
Single Family
Building Type
House
Storeys
1
Square Footage
1100 - 1500 sqft
Community Name
442 - Vine/Linwell
Title
Freehold
Land Size
57 x 135.4 FT
Age Of Building
51 to 99 years
Annual Property Taxes
$5,140
Parking Type
Attached Garage, Garage
Time on REALTOR.ca
21 days

Building

Bedrooms
Above Grade
3
Below Grade
1
Bathrooms
Total
2
Interior Features
Appliances Included
Garage door opener remote(s), Central Vacuum, Water Heater, Dishwasher, Dryer, Freezer, Stove, Washer, Window Coverings, Refrigerator
Basement Type
Full (Finished)
Building Features
Foundation Type
Concrete
Style
Detached
Architecture Style
Bungalow
Building Amenities
Fireplace(s)
Heating & Cooling
Cooling
Central air conditioning
Fireplace
1
Fireplace Type
Free Standing Metal
Heating Type
Forced air (Natural gas)
Utilities
Utility Sewer
Sanitary sewer
Water
Municipal water
Exterior Features
Exterior Finish
Vinyl siding
Pool Type
Above ground pool
Neighbourhood Features
Amenities Nearby
Park, Public Transit, Schools
Parking
Parking Type
Attached Garage, Garage
Total Parking Spaces
5

Measurements

Square Footage
1100 - 1500 sqft

Rooms

MetricImperial
Main level
Kitchen
Dining room
Bedroom
Bedroom
Bedroom
Family room
Basement
Bedroom
Utility room
Laundry room

Land

Lot Features
Frontage
57 ft
Land Depth
135 ft ,4 in
Are you interested in touring this listing?
Request a showing

Similar Listings

Jerry Hendriks