We use cookies and other technologies for functionality, security, and to provide you with a personalized experience on our online services. By continuing to use our online services, you agree to our Privacy Policy and Terms of Use. For information on how to adjust your privacy settings, visit our Cookie Policy.
Dismiss
Home QC Greater Montreal Montréal Le Plateau-Mont-Royal De Lorimier
4420 Rue D'Iberville #A
Directions Print
4420 Rue D'Iberville #A $890,000 + GST + QST
$890,000 + GST + QST
Hide
Favourite

4420 Rue D'Iberville
#A
Montréal (Le Plateau-Mont-Royal), Quebec H2H2L8

MLS® Number: 14657440
3
Bedrooms
2
Bathrooms
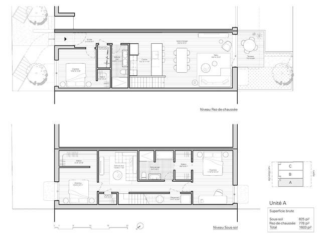
1603
Square Feet

Listing Description

*IMMEDIATE OCCUPANCY* LEDUC d'Iberville - Stunning real estate project of 8 condominium units designed by the architecture firm La Shed. High standards for construction and acoustic composition. Minimalist aesthetic and high-quality finishes: architectural anthracite-framed doors and windows, engineered maple wood floors, quartz countertops, undermount sink, sandstone mosaic backsplash, Venetian terrazzo-inspired porcelain tiles, and more. Each unit includes a private outdoor space (yard, terrace, or balcony). Baldwin Park is a 1-minute walk away, Frontenac metro station is 5 minutes by bus, and Shop Angus is a 5-minute bike ride away! GST/QST must be added to the asking price (43779879)

Property Summary

Property Type
Single Family
Building Type
Apartment
Storeys
3
Square Footage
1603 sqft
Neighbourhood Name
Le Plateau-Mont-Royal
Title
Condominium/Strata
Built in
2025
Time on REALTOR.ca
23 days

Building

Bathrooms
Total
2
Partial
0
Interior Features
Basement Features
Six feet and over
Basement Type
Full (Finished)
Building Features
Style
Attached
Heating & Cooling
Heating Type
(Electric)
Utilities
Utility Sewer
Municipal sewage system
Water
Municipal water
Neighbourhood Features
Amenities Nearby
CEGEP, Park, Schools, Public Transit
Maintenance or Condo Information
Maintenance Fees
$1 Monthly

Measurements

Square Footage
1603 sqft

Rooms

MetricImperial
Main level
Other
Storage
Bedroom
Other
Bathroom
Kitchen
Dining room
Living room
Basement
Bedroom
Other
Storage
Other
Storage
Bathroom
Other
Primary Bedroom

Land

Other Property Information
Zoning Type
Residential
Farm Features
Farm Type
Other
Are you interested in touring this listing?
Request a showing

Similar Listings

Benjamin Pelletier