We use cookies and other technologies for functionality, security, and to provide you with a personalized experience on our online services. By continuing to use our online services, you agree to our Privacy Policy and Terms of Use. For information on how to adjust your privacy settings, visit our Cookie Policy.
Dismiss
Home ON Niagara Region West Lincoln South Grimsby
11 DENNIS DRIVE
Directions Print
11 DENNIS DRIVE $669,000
$669,000
Hide
Favourite

11 DENNIS DRIVE
West Lincoln (Smithville), Ontario L0R2A0

MLS® Number: X12559030
3
Bedrooms
3
Bathrooms
1500 - 2000
Square Feet

Listing Description

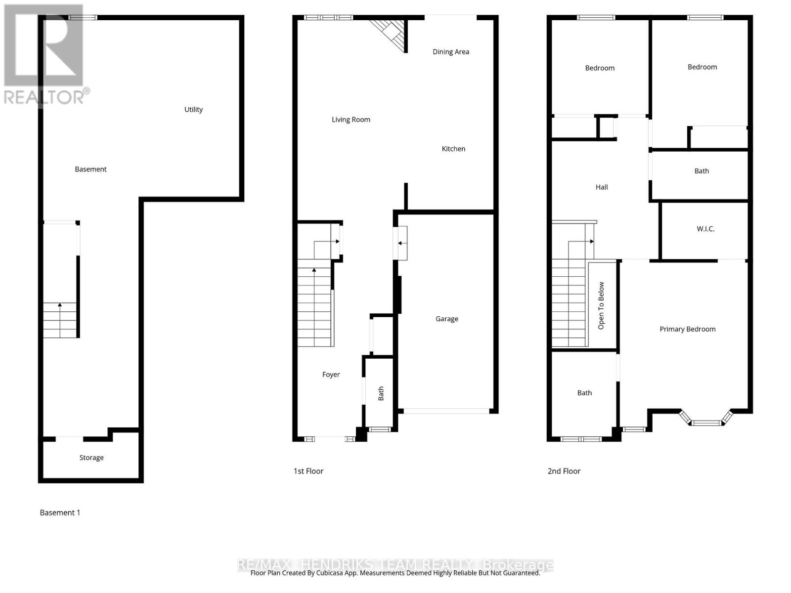
Welcome to this beautiful 2-storey townhome in the heart of Smithville! The main floor offers modern vinyl flooring throughout, a convenient powder room, and a stunning custom built-in TV feature wall with an electric fireplace. The contemporary kitchen features quartz countertops with a waterfall edge, stainless steel appliances, and a range microwave. Upgraded oak stairs with sleek steel spindles lead to the second level, where you'll find plush carpeted bedrooms. The spacious primary suite includes a 3-piece ensuite and walk-in closet. Two additional guest bedrooms-each with double closets-are serviced by their own 4-piece bathroom. An unfinished basement provides future potential, while the rear deck offers the perfect space for outdoor entertaining. A must-see home! (41677574)

Location Description

Cross Streets: St. Catharines Street. ** Directions: St. Catharines St to Dennis Dr.

Property Summary

Property Type
Single Family
Building Type
Row / Townhouse
Storeys
2
Square Footage
1500 - 2000 sqft
Community Name
057 - Smithville
Title
Freehold
Land Size
21.4 x 103.9 FT
Annual Property Taxes
$4,238
Parking Type
Attached Garage, Garage
Time on REALTOR.ca
24 days

Building

Bedrooms
Above Grade
3
Bathrooms
Total
3
Partial
1
Interior Features
Appliances Included
Dishwasher, Dryer, Microwave, Stove, Washer, Refrigerator
Basement Type
Full (Unfinished)
Building Features
Foundation Type
Poured Concrete
Style
Attached
Building Amenities
Fireplace(s)
Rental Equipment
Water Heater
Heating & Cooling
Cooling
Central air conditioning
Heating Type
Forced air (Natural gas)
Utilities
Utility Sewer
Sanitary sewer
Water
Municipal water
Exterior Features
Exterior Finish
Brick, Vinyl siding
Parking
Parking Type
Attached Garage, Garage
Total Parking Spaces
3

Measurements

Square Footage
1500 - 2000 sqft

Rooms

MetricImperial
Main level
Living room
Kitchen
Dining room
Second level
Primary Bedroom
Bedroom
Bedroom
Basement
Other
Utility room

Land

Lot Features
Frontage
21 ft ,4 in
Land Depth
103 ft ,10 in
Other Property Information
Zoning Description
RM2-126
Are you interested in touring this listing?
Request a showing

Similar Listings

Daniel Bones