We use cookies and other technologies for functionality, security, and to provide you with a personalized experience on our online services. By continuing to use our online services, you agree to our Privacy Policy and Terms of Use. For information on how to adjust your privacy settings, visit our Cookie Policy.
Dismiss
Home ON St. Catharines - Niagara Niagara Region Niagara Falls Chippawa - Rural
201 - 3710 MAIN STREET
Directions Print
201 - 3710 MAIN STREET $449,000
$449,000
Hide
Favourite

201 - 3710 MAIN STREET
Niagara Falls (Chippawa), Ontario L2G6B1

MLS® Number: X12557688
1 + 1
Bedrooms
2
Bathrooms
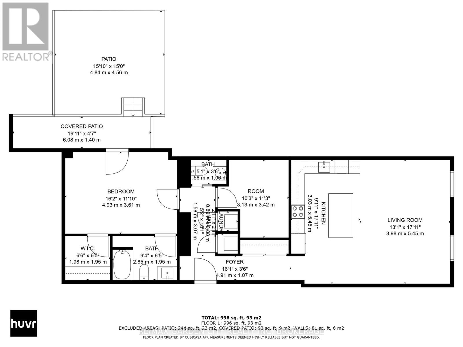
900 - 999
Square Feet

Listing Description

Location Location Location! Right in the heart of the charming little village of Chippawa a few minutes from Niagara Falls, you will discover an absolutely stunning 900 sq. ft. open-concept condo. Newly constructed, this home offers picturesque views of the Niagara River right from your living room and is just steps away from cafés, bistros, parks, and all the conveniences. Inside, you will be welcomed by soaring ceilings, an abundance of natural light, and a thoughtfully designed layout with plenty of cupboard space. The primary bedroom with 4pc ensuite + walk-in closet and garden doors leading to a covered deck and private terrace perfect for morning coffee or evening relaxation, + full Den/ Office & ensuite laundry. Enjoy the best of modern living, where comfort meets community in a truly walkable, riverside community. Did I mention this is a pet friendly building! (41674851)

Location Description

Cross Streets: Willoughby Drive. ** Directions: Main Street between Niagara & Willoughby.

Property Summary

Property Type
Single Family
Building Type
Apartment
Square Footage
900 - 999 sqft
Community Name
223 - Chippawa
Title
Condominium/Strata
Age Of Building
6 to 10 years
Annual Property Taxes
$3,570
Parking Type
No Garage
Time on REALTOR.ca
59 days

Building

Bedrooms
Above Grade
1
Below Grade
1
Bathrooms
Total
2
Partial
1
Interior Features
Appliances Included
Dishwasher, Dryer, Stove, Washer, Refrigerator
Basement Type
Partially finished
Building Features
Features
Conservation/green belt, Elevator, Lighting, Wheelchair access, Carpet Free
Foundation Type
Poured Concrete
Building Amenities
Visitor Parking, Storage - Locker, Security/Concierge
Structures
Deck, Patio(s)
Heating & Cooling
Cooling
Central air conditioning
Heating Type
Forced air (Natural gas)
Exterior Features
Exterior Finish
Brick Facing, Wood
Neighbourhood Features
Community Features
Pets Allowed With Restrictions
Amenities Nearby
Hospital, Park
Maintenance or Condo Information
Maintenance Fees
$695 Monthly
Maintenance Fees Include
Insurance, Common Area Maintenance, Water, Parking
Maintenance Management Company
CANNON GRECO
Parking
Parking Type
No Garage
Total Parking Spaces
1

Measurements

Square Footage
900 - 999 sqft

Rooms

MetricImperial
Main level
Living room
Kitchen
Den
Primary Bedroom

Land

Lot Features
View
River view, View of water
Other Property Information
Zoning Description
RES
Waterfront Features
Waterfront
Waterfront
Waterfront Name
Niagara River
Surface Water
River/Stream
Are you interested in touring this listing?
Request a showing

Similar Listings

Christine Gazzola