We use cookies and other technologies for functionality, security, and to provide you with a personalized experience on our online services. By continuing to use our online services, you agree to our Privacy Policy and Terms of Use. For information on how to adjust your privacy settings, visit our Cookie Policy.
Dismiss
Home BC Greater Kamloops Thompson-Nicola Kamloops Juniper Ridge
2120 LUPIN Court
Directions Print
2120 LUPIN Court $399,900
$399,900
Hide
Favourite

2120 LUPIN Court
Kamloops, British Columbia V2E0E2

MLS® Number: 10369534

Listing Description

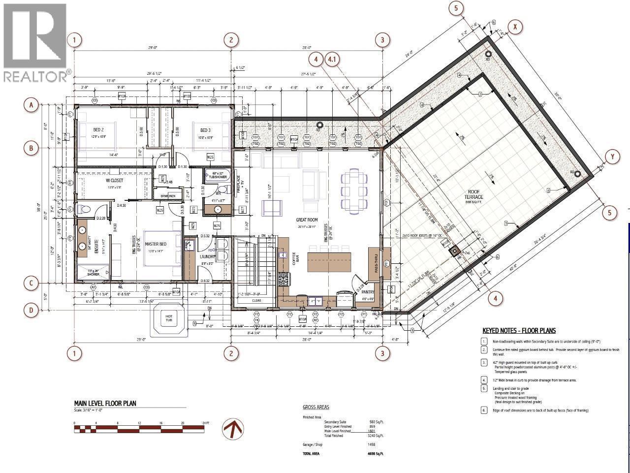
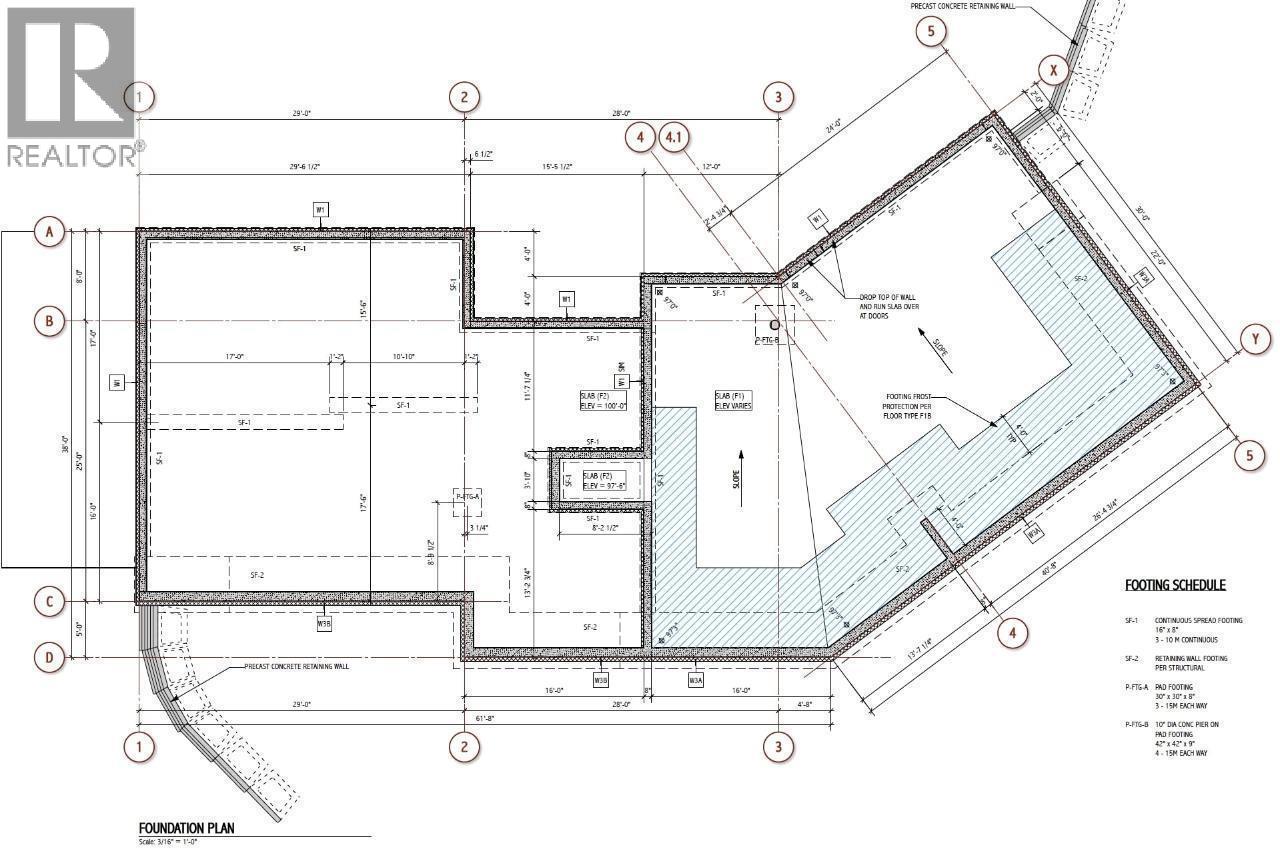
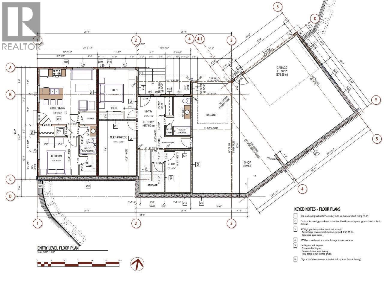
Prime building lot in sought-after Juniper Ridge. This 0.43-acre cul-de-sac property comes with professionally designed architectural plans and R2 zoning, offering excellent flexibility. Build your custom home plus a large coach house (approx. 2,000 sq ft) at the rear or explore potential for up to four units (subject to city approval). Located in a newer, family-friendly neighbourhood with parks, trails, bike ranch, and nature areas nearby, and only about 10 minutes to city amenities. A rare opportunity for homeowners, builders, or investors in one of Kamloops’ most desirable communities. (39484477)

Property Summary

Property Type
Vacant Land
Building Type
Other
Neighbourhood Name
Juniper Ridge
Title
Freehold
Land Size
0.42 ac|under 1 acre
Annual Property Taxes
$2,237
Time on REALTOR.ca
101 days

Price and Sale History

Date Status Price
Jul 4, 2022 Sale Closed $352,500
May 11, 2021 Sale Closed $160,000

Building

Utilities
Utility Type
Electricity (At Lot Line), Natural Gas (At Lot Line), Sewer (Available), Water (At Lot Line)
Utility Sewer
Municipal sewage system
Water
Municipal water
Neighbourhood Features
Amenities Nearby
Recreation

Land

Lot Features
Road Type
Paved road
View
View (panoramic)
Are you interested in touring this listing?
Request a showing

250-300-8316

Similar Listings

Ben Hack