We use cookies and other technologies for functionality, security, and to provide you with a personalized experience on our online services. By continuing to use our online services, you agree to our Privacy Policy and Terms of Use. For information on how to adjust your privacy settings, visit our Cookie Policy.
Dismiss
Home ON Greater Toronto Area Toronto Scarborough Highland Creek
816 MEADOWVALE ROAD
Directions Print
More Photos + 2
816 MEADOWVALE ROAD $2,900,000
$2,900,000
Hide
Favourite

816 MEADOWVALE ROAD
Toronto (Highland Creek), Ontario M1C1T3

MLS® Number: E12544098
6 + 6
Bedrooms
10
Bathrooms
5000 - 100000
Square Feet

Listing Description

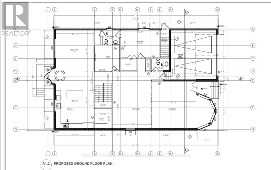
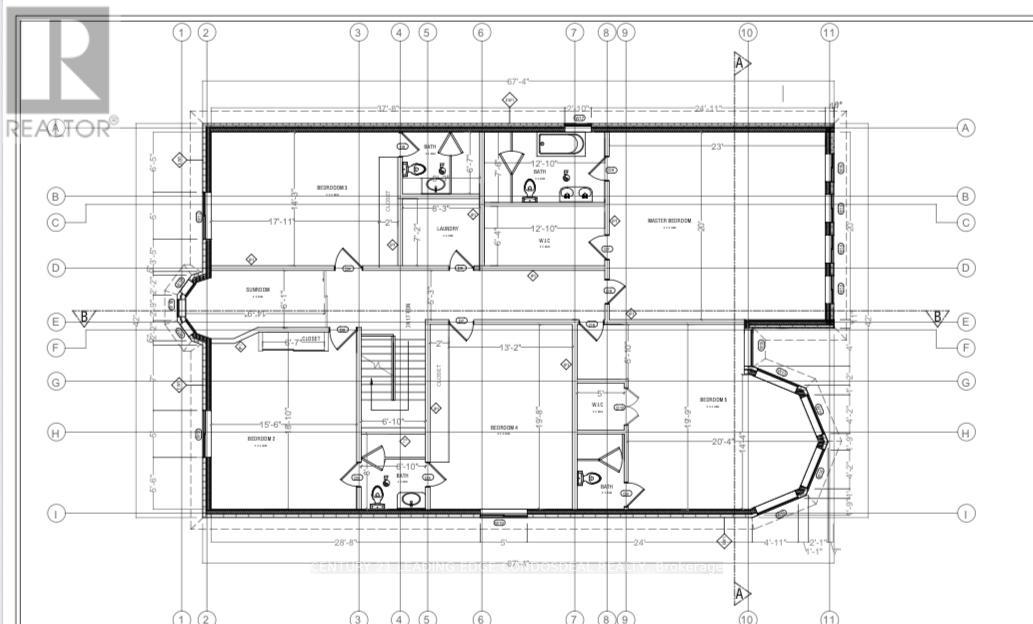
BUILD YOUR OWN LUXURY CUSTOM-BUILT HOME in the prestigious Highland Creek community! This rare offering provides over 8,000 sq. ft. of total living space. Approximately 5,000 sq. ft. above grade and 3,000 sq. ft. in the basement, Crafted for those seeking modern elegance, sophistication, and complete design freedom.Enjoy 12-ft ceilings on the main floor, 10-ft ceilings on the second, and an impressive 10.6-ft basement, creating an airy, grand atmosphere throughout. With 12 bedrooms and 10 bathrooms, the home features contemporary architecture, designer finishes, and exceptional craftsmanship. All of which can be fully customized to your taste, including the option to redesign or change the entire layout before construction begins.Buyers can enhance their home even further with exclusive upgrade options such as an elevator, butler's kitchen, garden suite, or luxury backyard swimming pool. Every detail can be tailored to your vision, offering limitless possibilities.For added peace of mind, the build is protected by a Tarion New Home Warranty, ensuring quality, security, and confidence in your investment.Extraordinary opportunity: Buyers also have the option to purchase the property and land in its current state for $1.5M before demolition and construction. Allowing complete flexibility to build at your own pace or explore future development potential.Endless possibilities to create the custom luxury home you've always envisioned. All in one of Toronto's most sought-after neighbourhoods. (41646983)

Location Description

Cross Streets: MEADOWVALE RD AND EUCLID AVE. ** Directions: MEADOWVALE RD.

Property Summary

Property Type
Single Family
Building Type
House
Storeys
2
Square Footage
5000 - 100000 sqft
Community Name
Highland Creek
Title
Freehold
Land Size
50 x 201.4 FT
Age Of Building
New building
Annual Property Taxes
$4,411
Parking Type
Attached Garage, Garage
Time on REALTOR.ca
85 days

Building

Bedrooms
Above Grade
6
Below Grade
6
Bathrooms
Total
10
Partial
1
Interior Features
Appliances Included
Garage door opener remote(s)
Building Features
Foundation Type
Concrete
Style
Detached
Heating & Cooling
Cooling
Central air conditioning
Heating Type
Forced air (Natural gas)
Utilities
Utility Sewer
Sanitary sewer
Water
Municipal water
Exterior Features
Exterior Finish
Brick
Parking
Parking Type
Attached Garage, Garage
Total Parking Spaces
8

Measurements

Square Footage
5000 - 100000 sqft

Rooms

MetricImperial
Main level
Living room
Family room
Kitchen
Eating area
Dining room
Office
Great room
Bedroom
Second level
Bedroom 3
Bedroom 4
Bedroom 5
Primary Bedroom
Bedroom 2

Land

Lot Features
Frontage
50 ft
Land Depth
201 ft ,4 in
Are you interested in touring this listing?
Request a showing

Similar Listings

Hoda Abdul Jabbar