We use cookies and other technologies for functionality, security, and to provide you with a personalized experience on our online services. By continuing to use our online services, you agree to our Privacy Policy and Terms of Use. For information on how to adjust your privacy settings, visit our Cookie Policy.
Dismiss
Home AB Greater Calgary Division No. 6 Calgary Glenbrook
3511 42 Street SW
Directions Print
3511 42 Street SW $1,024,900
$1,024,900
Hide
Favourite

3511 42 Street SW
Calgary, Alberta T3E3M7

MLS® Number: A2270058
3 + 1
Bedrooms
4
Bathrooms
1905
Square Feet

Listing Description

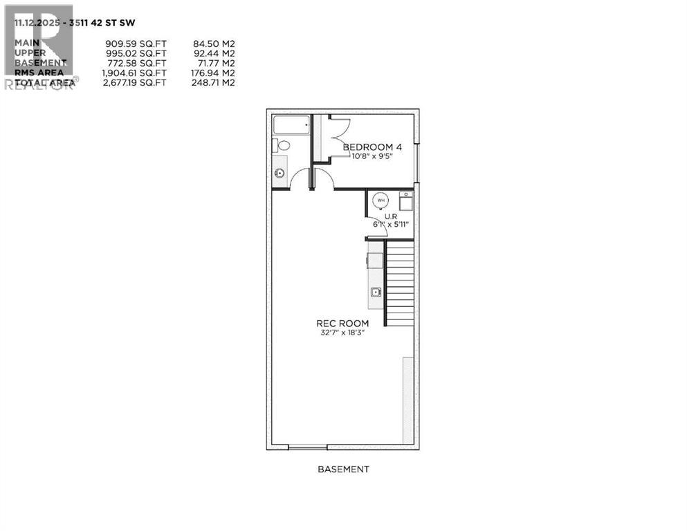
Timeless design, modern comfort, and everyday function come together on a quiet tree-lined street in this brand-new SEMI-DETACHED home in GLENBROOK. With expansive windows, warm natural materials, and elevated finishes throughout, it’s crafted for family living in one of Calgary’s most established neighbourhoods.Step in from the covered entry to a bright foyer with sightlines across the open main floor, where light oak hardwood carries seamlessly through the principal rooms. The front dining room is anchored by a custom feature wall, setting the tone for the thoughtful millwork found throughout. At the heart of the home, the chef-inspired kitchen blends beauty with purpose—two full pantries, crisp white uppers over matching oak lowers, a striking waterfall quartz island, and professional KitchenAid appliances including a flat gas cooktop, built-in wall oven, and French-door fridge. Clean lines, elegant lighting, and generous prep space make this a true culinary hub.The floorplan flows naturally into the inviting living room, where custom built-ins frame a cozy gas fireplace, creating the perfect space to unwind or gather with friends. Large windows and an 8’ sliding patio door pull in west light and open directly to the backyard for easy indoor/outdoor living. A well-designed mudroom with built-ins keeps everyday essentials organized, while an elevated powder room provides privacy and convenience through a hidden door.Upstairs, retreat to the serene primary suite, where vaulted ceilings lift the space and morning sun pours through oversized windows. The ensuite reads like a private spa, offering a massive walk-in shower with body jets, double sinks, a deep free-standing soaker tub, and beautifully curated tile throughout. A custom walk-in closet completes the sanctuary. Two additional bedrooms sit down the hall, each with their own custom cabinetry, and a thoughtfully placed built-in desk creates the perfect homework zone or dedicated home office. A spacious laun dry room with quartz countertop, sink, and extra storage ensures the second floor is as practical as it is comfortable.The lower level flexes effortlessly with family life—an expansive family room with custom built-in TV wall, a generous flex/rec area with a full wet bar, plus an additional bedroom and full bath, ideal for guests, teens, or extended family.Step outside to a sun-soaked west-facing backyard, complete with a large rear deck and BBQ gas line, ready for late summer evenings and weekend gatherings. A double garage and a striking exterior finished in stucco and Hardie-board siding complete this exceptional property.Set in the heart of Glenbrook, this home places you close to schools, parks, playgrounds, shopping, transit, and major routes—offering the perfect blend of community charm & everyday convenience.A refined, functional, and beautifully built home—crafted for real life, designed to be lived in, & ready to enjoy. More photos to follow, as cabinets and flooring have now been installed. (31372852)

Property Summary

Property Type
Single Family
Building Type
Duplex
Storeys
2
Square Footage
1905 sqft
Community Name
Glenbrook
Subdivision Name
Glenbrook
Title
Freehold
Land Size
2871.31 sqft|0-4,050 sqft
Built in
2025
Annual Property Taxes
$0
Parking Type
Detached Garage (2), See Remarks
Time on REALTOR.ca
28 days

Building

Bedrooms
Above Grade
3
Below Grade
1
Bathrooms
Total
4
Partial
1
Interior Features
Appliances Included
Refrigerator, Dishwasher, Microwave, Oven - Built-In, Hood Fan
Flooring
Carpeted, Hardwood, Tile
Basement Type
Full (Finished)
Building Features
Features
Treed, See remarks, Back lane, Wet bar, PVC window, Closet Organizers, No Animal Home, Gas BBQ Hookup
Foundation Type
Poured Concrete
Style
Semi-detached
Structures
Deck
Heating & Cooling
Cooling
None, See Remarks
Fireplace
1
Heating Type
Other, Forced air, (Natural gas), In Floor Heating
Exterior Features
Exterior Finish
Stucco
Neighbourhood Features
Amenities Nearby
Park, Playground, Recreation Nearby, Schools, Shopping
Parking
Parking Type
Detached Garage (2), See Remarks
Total Parking Spaces
4

Measurements

Square Footage
1905 sqft
Total Finished Area
1905 sqft

Rooms

MetricImperial
Main level
Kitchen
Other
Living room
2pc Bathroom
Other
Basement
Recreational, Games room
Other
Bedroom
4pc Bathroom
Furnace
Upper Level
Loft
Primary Bedroom
Bedroom
Bedroom
4pc Bathroom
5pc Bathroom
Laundry room

Land

Lot Features
Fencing
Fence
Frontage
7.62 m
Land Depth
35.03 m
Landscape Features
Lawn
Other Property Information
Zoning Description
R-CG
Data provided by: Pillar 9™
Are you interested in touring this listing?
Request a showing

Similar Listings

Stirling G. Karlsen