We use cookies and other technologies for functionality, security, and to provide you with a personalized experience on our online services. By continuing to use our online services, you agree to our Privacy Policy and Terms of Use. For information on how to adjust your privacy settings, visit our Cookie Policy.
Dismiss
Home ON Greater Barrie Simcoe County Barrie
46 CAROL ROAD
Directions Print
46 CAROL ROAD $699,900
$699,900
Hide
Favourite

46 CAROL ROAD
Barrie (Allandale Heights), Ontario L4N3P7

MLS® Number: S12542024
3 + 2
Bedrooms
2
Bathrooms
1100 - 1500
Square Feet

Listing Description

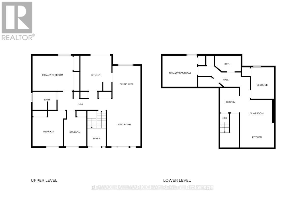
Welcome to 46 Carol Road in the sought-after Allandale community of Barrie. This detached bungalow - offers two separate rental units. UNIT 1 - 3 Bedrooms, Kitchen, Living Room, Dining Room, 4 pc Bathroom. UNIT 2 - 2 Bedrooms, Kitchen, Living Room, 4 pc Bathroom. Convenience of onsite Laundry, both units (one stacked). Appliances included, as shown. INVESTORS! Looking to step into the real estate investment market? Add to your existing portfolio? Live in one unit and rent out the other to offset your expenses - or - rent out both units at current market rates. This property offers a double car garage with plenty of driveway parking, and a large private rear yard. Situated on one of Barrie's thriving neighbourhoods - steps to schools, parks. Minutes to all the key amenities - shopping, services, fine and casual dining, entertainment. Short drive to all the four season outdoor adventures Simcoe County has to offer - golf, skiing, biking and hiking trails, lake fun! Easy access to commuter routes - public transit, GO train/bus service, highways north to cottage country / south to the GTA! (41642560)

Location Description

Cross Streets: Little Ave Between Bayview /Fairview. ** Directions: Little Ave To Carol Rd To Sign.

Property Summary

Property Type
Multi-family
Building Type
Duplex
Storeys
1
Square Footage
1100 - 1500 sqft
Community Name
Allandale Heights
Land Size
50 x 110 FT|under 1/2 acre
Age Of Building
31 to 50 years
Annual Property Taxes
$4,812
Parking Type
Attached Garage, Garage
Time on REALTOR.ca
34 days

Building

Bedrooms
Above Grade
3
Below Grade
2
Bathrooms
Total
2
Interior Features
Appliances Included
Dryer, Stove, Washer, Refrigerator
Basement Features
Apartment in basement, Separate entrance
Basement Type
Full, Finished
Building Features
Foundation Type
Concrete
Architecture Style
Raised bungalow
Rental Equipment
Water Heater
Heating & Cooling
Cooling
None
Heating Type
Forced air (Natural gas)
Utilities
Utility Sewer
Sanitary sewer
Water
Municipal water
Exterior Features
Exterior Finish
Brick
Parking
Parking Type
Attached Garage, Garage
Total Parking Spaces
6

Measurements

Square Footage
1100 - 1500 sqft

Rooms

MetricImperial
Main level
Kitchen
Living room
Dining room
Bedroom
Bedroom 2
Bedroom 3
Bathroom
Basement
Bedroom 4
Bedroom 5
Bathroom
Laundry room
Kitchen
Living room

Land

Lot Features
Frontage
50 ft
Land Depth
110 ft
Other Property Information
Zoning Description
Res
Are you interested in touring this listing?
Request a showing

Similar Listings

CHAD WOOLSEY