We use cookies and other technologies for functionality, security, and to provide you with a personalized experience on our online services. By continuing to use our online services, you agree to our Privacy Policy and Terms of Use. For information on how to adjust your privacy settings, visit our Cookie Policy.
Dismiss
Home QC Greater Montreal Montréal Ville-Marie Quartier-des-Spectacles Latin Quarter
345 Rue Émery
Directions Print
345 Rue Émery + GST + QST $35/Yearly/square feet
+ GST + QST $35/Yearly/square feet
Hide
Favourite

345 Rue Émery
Montréal (Ville-Marie), Quebec H2X1J2

MLS® Number: 28595151

Listing Description

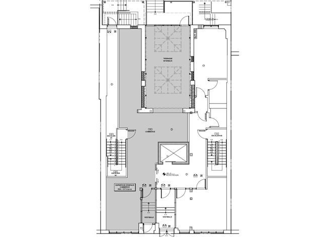
Prime commercial space for rent at 345 rue Emery, located at the base boutique residences in the heart of Quartier des Spectacles. This 1,377 sq. ft. ground-floor unit is ideal for a restaurant or café, with optional basement storage available. A glass-enclosed rear solarium adds a unique, light-filled ambiance--perfect for creating an inviting dining experience. $8 psf needs to be added to the asking price for the property taxes. GST/QST must be added to the asking price (57692488)

Property Summary

Property Type
Retail
Building Type
Retail
Neighbourhood Name
Central
Time on REALTOR.ca
38 days

Building

Building Features
Style
Attached
Total Units
1

Land

Farm Features
Farm Type
Other
Are you interested in touring this listing?
Request a showing

Scott Chisling