We use cookies and other technologies for functionality, security, and to provide you with a personalized experience on our online services. By continuing to use our online services, you agree to our Privacy Policy and Terms of Use. For information on how to adjust your privacy settings, visit our Cookie Policy.
Dismiss
Home ON Greater Toronto Area Toronto North York Bathurst Manor
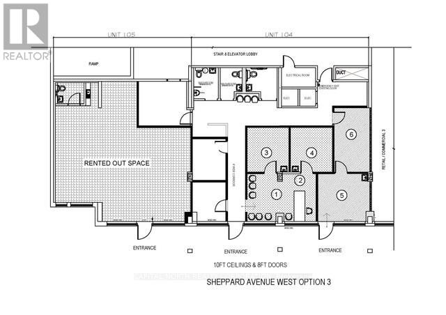
104 - 778 SHEPPARD AVENUE W
Directions Print
104 - 778 SHEPPARD AVENUE W $3,975/Monthly
$3,975/Monthly
Hide
Favourite

104 - 778 SHEPPARD AVENUE W
Toronto (Bathurst Manor), Ontario M3H6B7

MLS® Number: C12539004
3
Bathrooms
1347
Square Feet

Listing Description

All Inclusive Lease (Tmi & Utilities Included)! Turn Key Medical Or Professional Office. Ground Floor Space Fronting On Sheppard Ave. Listed Price Is For Rooms 1 to 4 On The Attached Floor Plan. Access to Washrooms. Street Exposure Along Sheppard W Just 2 Blocks Away From Bathurst & Subway Access. High Traffic. Free Customer/Patient Parking. Finished Space. Ideal For Medical/Rehab/Office/Lawyer/Accountant/Professional Use. Tmi & Utilities Included. Surface Level Parking Available. (41636041)

Location Description

Bathurst / Sheppard Ave W

Property Summary

Property Type
Office
Building Type
Offices
Square Footage
1347 sqft
Community Name
Bathurst Manor
Annual Property Taxes
$0
Time on REALTOR.ca
38 days

Building

Bathrooms
Total
3
Heating & Cooling
Cooling
Fully air conditioned
Heating Type
Forced air (Natural gas)
Utilities
Water
Municipal water

Measurements

Square Footage
1347 sqft

Land

Other Property Information
Zoning Description
Commercial - Retail
Are you interested in touring this listing?
Request a showing

JOSEPH IANNI