We use cookies and other technologies for functionality, security, and to provide you with a personalized experience on our online services. By continuing to use our online services, you agree to our Privacy Policy and Terms of Use. For information on how to adjust your privacy settings, visit our Cookie Policy.
Dismiss
Home ON Parry Sound District Parry Sound
12-14 JOSEPH Street
Directions Print
12-14 JOSEPH Street $35/square feet
$35/square feet
Hide
Favourite

12-14 JOSEPH Street
Parry Sound, Ontario P2A2G1

MLS® Number: 40774380

Listing Description

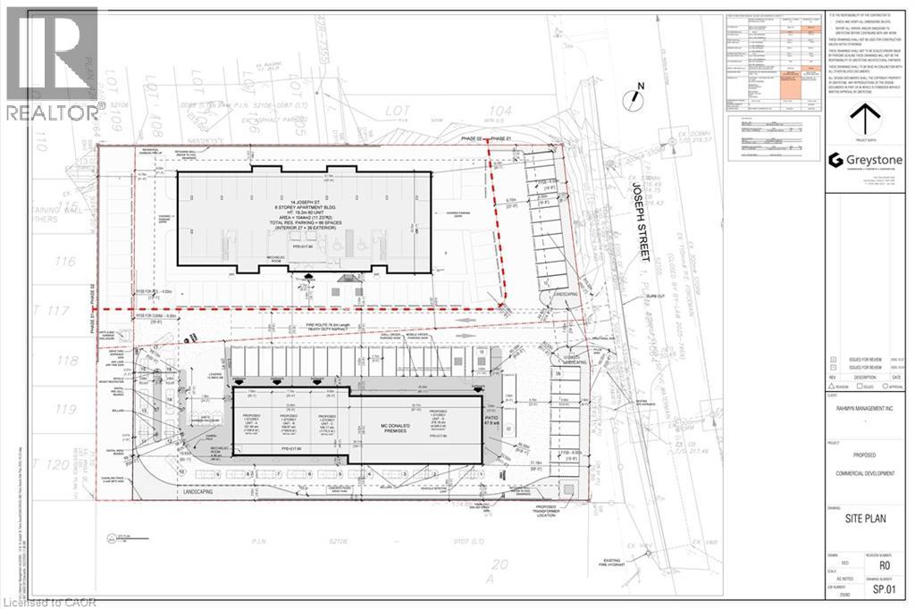
3,500 SF for Lease | High-Visibility Site with Future Development Potential Situated on Joseph Street in Parry Sound, this 3,500 SF space offers excellent visibility and access along a key commercial corridor. A conditional deal is in place with McDonald’s, bringing added profile to the site. Currently zoned C3 (Highway Commercial), permitted uses include a wide range of retail, service, office, and hospitality uses. The property is also subject to active zoning amendment applications proposing future residential development, including standalone apartment uses with densities of up to 120 units per hectare and a 72- to 91-unit apartment complex, reflecting the site’s long-term potential. The property is ideally positioned near the downtown core, offering a unique opportunity for businesses looking to establish a presence in this growing regional centre. (69868595)

Location Description

West side of Joseph Street between Parry Sound Drive and Isabella Street

Property Summary

Property Type
Retail
Storeys
1
Subdivision Name
Parry Sound
Title
Freehold
Land Size
Unknown
Time on REALTOR.ca
38 days

Building

Interior Features
Basement Type
None
Utilities
Utility Sewer
Municipal sewage system
Water
Municipal water
Neighbourhood Features
Community Features
High Traffic Area
Amenities Nearby
Public Transit
Maintenance or Condo Information
Maintenance Fees Include
Other, See Remarks

Measurements

Square Footage
3500 sqft
Exterior Building Size
3500 sqft

Land

Lot Features
Frontage
234 ft
Other Property Information
Access
Highway access
Zoning Description
C3 Highway Commercial
Are you interested in touring this listing?
Request a showing

519-585-2200
519-650-5250
BOB VRENJAK