We use cookies and other technologies for functionality, security, and to provide you with a personalized experience on our online services. By continuing to use our online services, you agree to our Privacy Policy and Terms of Use. For information on how to adjust your privacy settings, visit our Cookie Policy.
Dismiss
Home AB Grande Prairie Division No. 19 Riverstone
9090 80 Avenue
Directions Print
9090 80 Avenue $537,900
$537,900
Hide
Favourite

9090 80 Avenue
Grande Prairie, Alberta T8X0W3

MLS® Number: A2269945
3
Bedrooms
3
Bathrooms
1735
Square Feet

Listing Description

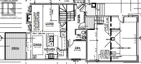
Welcome to this stunning new home in Riverstone, offering modern living at its finest! Featuring 1,735 sq.ft. of beautifully designed space, a double attached garage, $5,000 appliance allowance, and a 12x10 ft deck, this home blends comfort and style perfectly. The open-concept main floor includes a cozy electric fireplace, a bright kitchen with quartz countertops, and a main-floor den and powder room for added convenience. Upstairs, you’ll find a spacious primary suite with a walk-in closet and 5-piece ensuite, plus two additional bedrooms, a bonus room, full bath, and laundry. The basement offers a separate entry and awaits your personal touch. Situated on a generous lot in a family-friendly community close to schools, parks, shopping, and amenities, this home delivers modern elegance and everyday functionality. GST included in price with rebate to builder. (31355555)

Property Summary

Property Type
Single Family
Building Type
House
Storeys
2
Square Footage
1735 sqft
Community Name
Riverstone
Subdivision Name
Riverstone
Title
Freehold
Land Size
4143 sqft|4,051 - 7,250 sqft
Built in
2025
Annual Property Taxes
$0
Parking Type
Attached Garage (2)
Time on REALTOR.ca
110 days

Building

Bedrooms
Above Grade
3
Bathrooms
Total
3
Partial
1
Interior Features
Appliances Included
None
Flooring
Carpeted, Vinyl Plank
Basement Type
Full (Unfinished)
Building Features
Foundation Type
Poured Concrete
Style
Detached
Construction Material
Wood frame
Structures
Deck
Heating & Cooling
Cooling
None
Fireplace
1
Heating Type
Forced air, (Natural gas)
Exterior Features
Exterior Finish
Vinyl siding
Neighbourhood Features
Amenities Nearby
Schools, Shopping
Parking
Parking Type
Attached Garage (2)
Total Parking Spaces
4

Measurements

Square Footage
1735 sqft
Total Finished Area
1735 sqft

Rooms

MetricImperial
Main level
2pc Bathroom
Second level
Primary Bedroom
Bedroom
Bedroom
5pc Bathroom
3pc Bathroom

Land

Lot Features
Fencing
Not fenced
Frontage
11 m
Land Depth
35 m
Other Property Information
Zoning Description
RS
Data provided by: Pillar 9™
Are you interested in touring this listing?
Request a showing

Similar Listings

Shekhar Sahdev